Acquisto Assistito - in Asta e Pre-Asta

In vendita
Appartamento
Pescara
106.911 €
Descrizione
Acquisto Assistito in Asta Giudiziaria
Per maggiori proposte visita il sito dell’agenzia: www.asteagency.com

Verifica fattibilità d’acquisto in PRE-ASTA

DATA ASTA : 25/02/26

UBICAZIONE E DESCRIZIONE: Indirizzo Strada colle di mezzo, 19/6, Pescara PE


Descrizione sintetica:
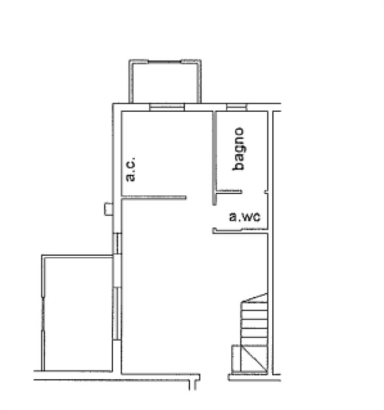
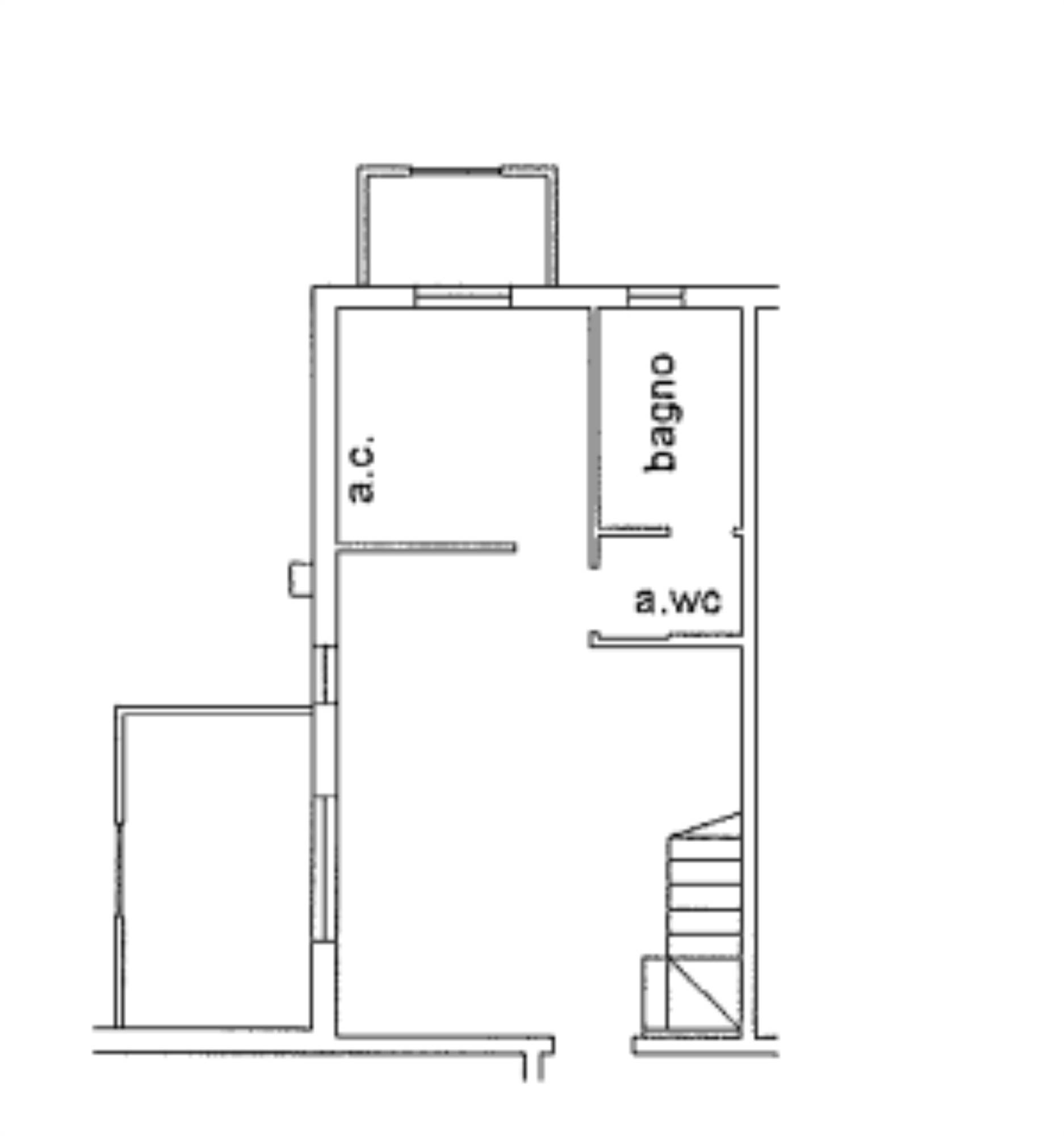
Appartamento piano secondo e terzo con garage di 23,00 mq, composto da zona giorno al piano secondo, con soggiorno, cucina, disimpegno, bagno e i due balconi, zona notte al piano terzo, con due camere, disimpegno, bagno, ripostiglio, due balconi di cui uno chiuso con struttura in alluminio e vetro (veranda),


Aste Agency SRL offre il servizio di assistenza per acquistare tramite un mutuo con banche convenzionate. Assiste ed indirizza, dall’aggiudicazione fino alla consegna delle chiavi.

PERCHE’ COMPRARE ALL’ASTA:
- Acquisto sicuro tramite Tribunale;
- Prezzo inferiore rispetto al mercato libero, quindi rata del mutuo più bassa;
- Banche convenzionate con i Tribunali;
- Nessun vincolo di prezzo nella rivendita e nella locazione.

Le Aste Giudiziarie sono soluzioni abitative a prezzi unici, in quanto si compera ad un prezzo inferiore, paragonato alla realtà proibitiva del mercato libero, e l’investimento immobiliare risulta essere sicuramente conveniente.
Per maggiori delucidazioni vi invitiamo a contattarci. Sarà nostra premura fissare un appuntamento in studio e trasferirvi tutte le informazioni necessarie per un’attenta e serena valutazione.

ASTE AGENCY SRL – Contattateci per un appuntamento presso uno dei nostri uffici o in videochiamata.


Caratteristiche principali
Codice:
171.23.250226.PE
Città:
Pescara
Categoria:
Appartamento
Locali:
4
Camere:
2
Bagni:
2
Mq:
118
Box:
1
Mq Box:
23
Balconi:
4
Mq Balcone:
16
Terrazzi:
1
mq Terrazzo:
10
Piano:
2
Anno:
2004
Classe energetica:
G
Stato Immobile:
Buono
Grado:
Medio
Tipo Cucina:
Abitabile
Riscaldamento:
Autonomo
Fonte Energetica:
Gas
Raffrescamento:
Split
Accesso Disabili:
No
Accessori
Veranda
Mappa
Strada colle di mezzo, , 19 - Pescara (PE)
Richiedi informazioni
Invia
Cookie preference