Acquisto Assistito - in Asta e Pre-Asta

In vendita
Villa
Atri
93.940 €
Descrizione
Acquisto Assistito in Asta Giudiziaria
Per maggiori proposte visita il sito dell’agenzia: www.asteagency.com

Verifica fattibilità d’acquisto in PRE-ASTA


DATA ASTA : 25/02/26


Disponibilità: Libero al decreto di trasferimento

UBICAZIONE E DESCRIZIONE:
Indirizzo: Viale del Risorgimento, 6 Atri TE

Descrizione sintetica:
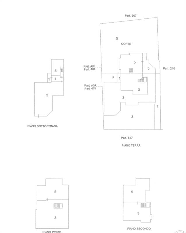
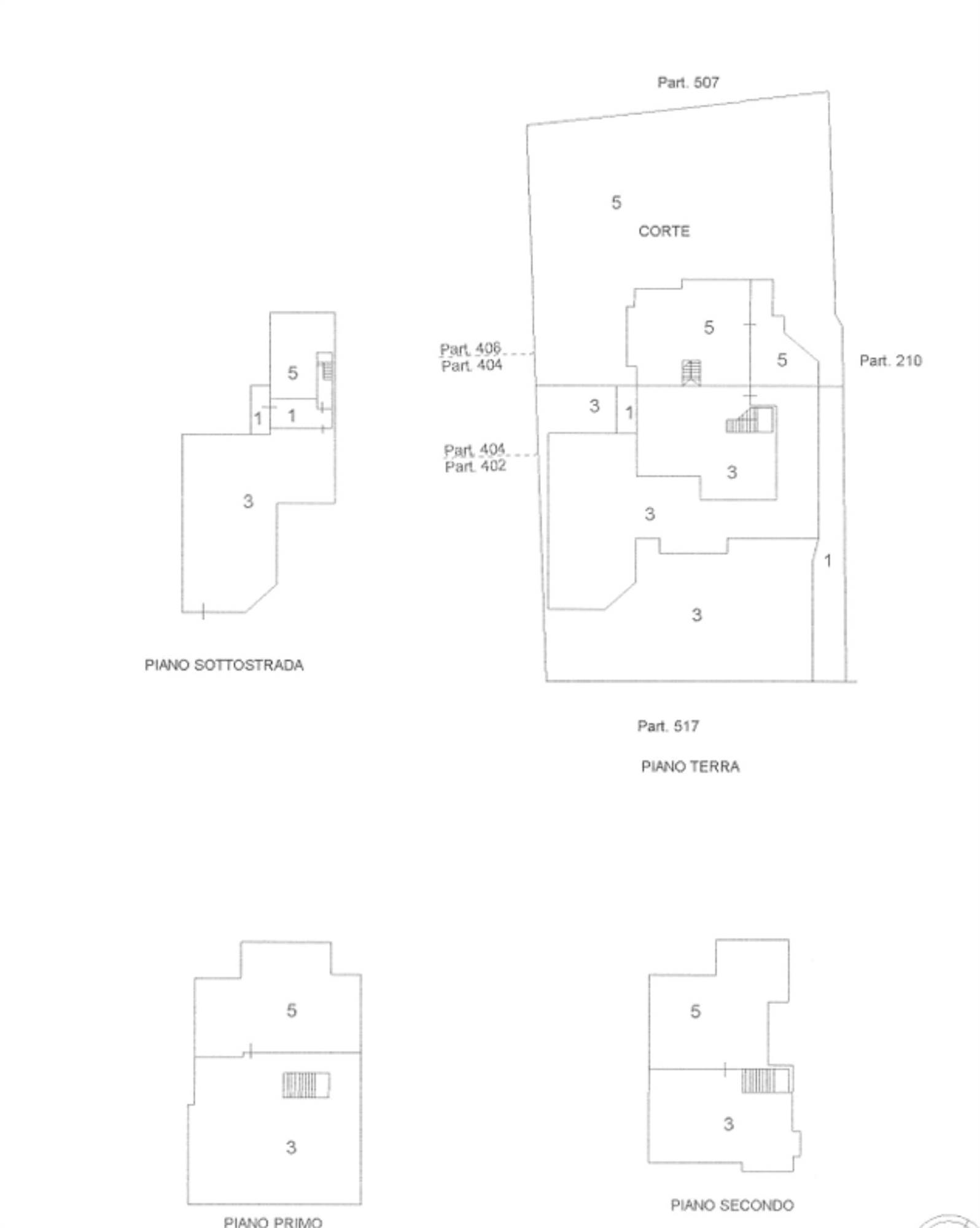
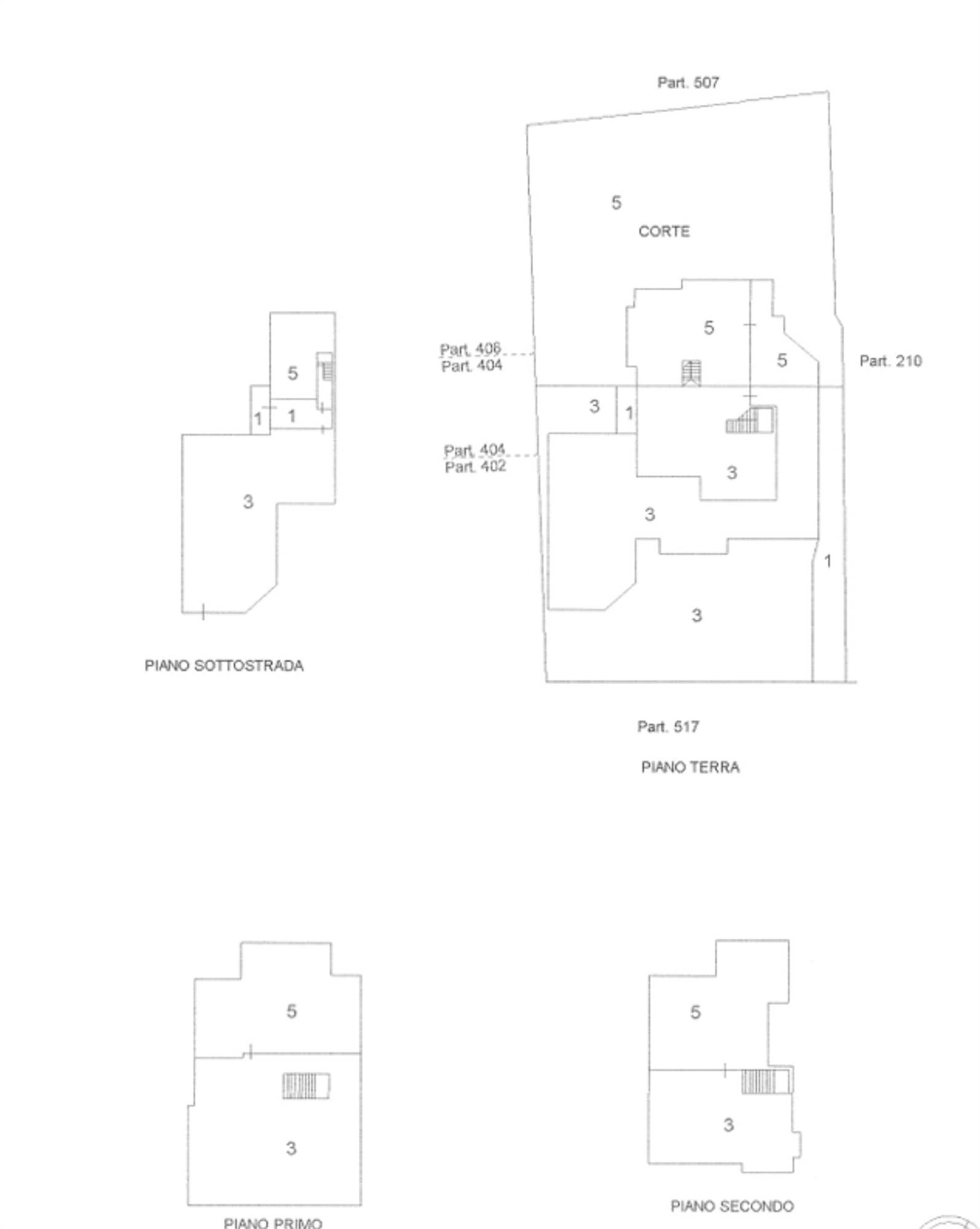
Villa composta da: abitazione 220 mq; balconi-terrazzo 54 mq; garage/cantina mq 89,10, soffitta 89,10 mq; giardino esclusivo 54 mq; totale superficie convenzionale 417,10 mq. Si compone di nove vani abitabili più accessori sopra descritti. servizi igienici tre.


Aste Agency SRL offre il servizio di assistenza per acquistare tramite un mutuo con banche convenzionate. Assiste ed indirizza, dall’aggiudicazione fino alla consegna delle chiavi.

PERCHE’ COMPRARE ALL’ASTA:
- Acquisto sicuro tramite Tribunale;
- Prezzo inferiore rispetto al mercato libero, quindi rata del mutuo più bassa;
- Banche convenzionate con i Tribunali;
- Nessun vincolo di prezzo nella rivendita e nella locazione.

Le Aste Giudiziarie sono soluzioni abitative a prezzi unici, in quanto si compera ad un prezzo inferiore, paragonato alla realtà proibitiva del mercato libero, e l’investimento immobiliare risulta essere sicuramente conveniente.
Per maggiori delucidazioni vi invitiamo a contattarci. Sarà nostra premura fissare un appuntamento in studio e trasferirvi tutte le informazioni necessarie per un’attenta e serena valutazione.

ASTE AGENCY SRL – Contattateci per un appuntamento presso uno dei nostri uffici o in videochiamata.
Caratteristiche principali
Codice:
165.2023.250226 TE
Città:
Atri
Categoria:
Villa
Locali:
9
Camere:
5
Bagni:
3
Mq:
417
Box:
1
Mq Giardino:
54
Balconi:
2
Terrazzi:
1
Piano:
Terra
Anno:
1968
Classe energetica:
G
Stato Immobile:
Buono
Grado:
Medio
Giardino:
Privato
Arredi:
Non Arredato
Tipo Cucina:
Abitabile
Riscaldamento:
Autonomo
Fonte Energetica:
Metano
Accesso Disabili:
No
Accessori
Ripostiglio
Mappa
Viale del Risorgimento, 6 - Atri (TE)
Planimetrie
Richiedi informazioni
Invia
Cookie preference