Acquisto Assistito - in Asta e Pre-Asta

In vendita
Appartamento
Montecchio Maggiore
123.975 €
Descrizione
...Acquisto Assistito in Asta Giudiziaria
Per maggiori proposte visita il sito dell’agenzia: www.asteagency.com

Verifica fattibilità d’acquisto in PRE-ASTA

DATA ASTA : 31/03/26

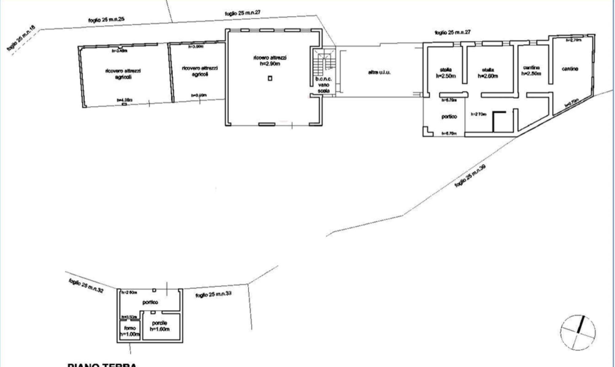
UBICAZIONE E DESCRIZIONE:
Via Covolo Alto 6, 36075 Montecchio Maggiore VI

Descrizione sintetica: abitazione con accessori agricoli ed area di corte, oltre terreni agricoli ubicati nelle immediate vicinanze. Essa si sviluppa su tre piani fuori terra, ed è suddiviso in due unità abitative (una ai piani terra e primo e l’altra al piano primo); il primo appartamento, in scarso stato manutentivo, risulta composto al p.t.: ingresso/soggiorno, cucina e scala di accesso al piano primo e, in quest’ultimo, da una camera doppia, bagno finestrato, scala di accesso alla soffitta e da un’altra camera doppia; il secondo appartamento, situato al piano primo, a sinistra rispetto al vano scala, risulta composto da ingresso, soggiorno ed angolo cottura in un unico locale, due terrazzi, bagno, camera doppia con terrazzo, camera singola e ripostiglio; al p.secondo si trova una soffitta con tetto in andamento. Ricovero attrezzi di mq 216,00, portico di mq 20,00, stalle di mq 69,90, cantine di mq 128,00 e fienile di mq 128,00.


Aste Agency SRL offre il servizio di assistenza per acquistare tramite un mutuo con banche convenzionate. Assiste ed indirizza, dall’aggiudicazione fino alla consegna delle chiavi.

PERCHE’ COMPRARE ALL’ASTA:
- Acquisto sicuro tramite Tribunale;
- Prezzo inferiore rispetto al mercato libero, quindi rata del mutuo più bassa;
- Banche convenzionate con i Tribunali;
- Nessun vincolo di prezzo nella rivendita e nella locazione.

Le Aste Giudiziarie sono soluzioni abitative a prezzi unici, in quanto si compera ad un prezzo inferiore, paragonato alla realtà proibitiva del mercato libero, e l’investimento immobiliare risulta essere sicuramente conveniente.
Per maggiori delucidazioni vi invitiamo a contattarci. Sarà nostra premura fissare un appuntamento in studio e trasferirvi tutte le informazioni necessarie per un’attenta e serena valutazione.

ASTE AGENCY SRL – Contattateci per un appuntamento presso uno dei nostri uffici o in videochiamata.
Caratteristiche principali
Codice:
1620.25.1.310326.VI
Città:
Montecchio Maggiore
Categoria:
Appartamento
Locali:
7
Camere:
4
Bagni:
2
Mq:
486
Piano:
Terra
Anno:
1974
Classe energetica:
F
Stato Immobile:
Buono
Grado:
Medio
Tipo Cucina:
Abitabile
Riscaldamento:
Autonomo
Fonte Energetica:
Metano
Raffrescamento:
Split
Accesso Disabili:
No
Accessori
Aria Condizionata
Camino
Canna Fumaria
Mappa
Via Covolo Alto , 6 - Montecchio Maggiore (VI)
Richiedi informazioni
Invia
Cookie preference