Acquisto Assistito - in Asta e Pre-Asta

In vendita
Appartamento
Lonato del Garda
87.713 €
Descrizione
Acquisto Assistito in Asta Giudiziaria
Per maggiori proposte visita il sito dell’agenzia: www.asteagency.com

Verifica fattibilità d’acquisto in PRE-ASTA

DATA ASTA : 31/03/26

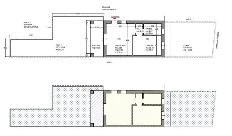
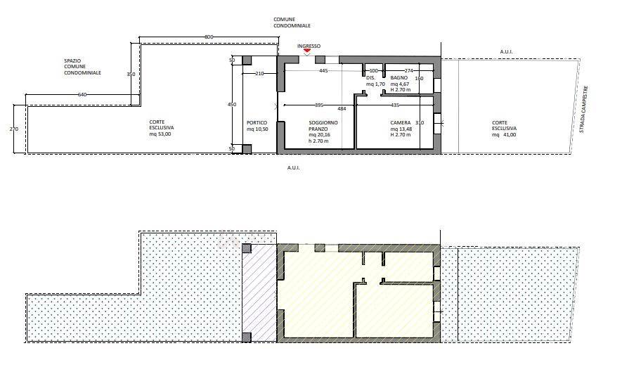
UBICAZIONE E DESCRIZIONE:
Indirizzo: Via Campana di Sotto, Lonato del Garda (BS)
Descrizione sintetica:
Appartamento bilocale al piano terra con corti esclusive, cantina e garage nel seminterrato di 31,00 mq. Si compone di un soggiorno con angolo cottura, una camera da letto ed un bagno.
 

Aste Agency SRL offre il servizio di assistenza per acquistare tramite un mutuo con banche convenzionate. Assiste ed indirizza, dall’aggiudicazione fino alla consegna delle chiavi.

PERCHE’ COMPRARE ALL’ASTA:
- Acquisto sicuro tramite Tribunale;
- Prezzo inferiore rispetto al mercato libero, quindi rata del mutuo più bassa;
- Banche convenzionate con i Tribunali;
- Nessun vincolo di prezzo nella rivendita e nella locazione.

Le Aste Giudiziarie sono soluzioni abitative a prezzi unici, in quanto si compera ad un prezzo inferiore, paragonato alla realtà proibitiva del mercato libero, e l’investimento immobiliare risulta essere sicuramente conveniente.
Per maggiori delucidazioni vi invitiamo a contattarci. Sarà nostra premura fissare un appuntamento in studio e trasferirvi tutte le informazioni necessarie per un’attenta e serena valutazione.

ASTE AGENCY SRL – Contattateci per un appuntamento presso uno dei nostri uffici o in videochiamata.


Caratteristiche principali
Codice:
157.25.310326.BS
Città:
Lonato del Garda
Categoria:
Appartamento
Locali:
2
Camere:
1
Bagni:
1
Mq:
35
Piano:
Terra
Anno:
2011
Classe energetica:
G
Stato Immobile:
Buono
Grado:
Medio
Arredi:
Non Arredato
Tipo Cucina:
Angolo Cottura
Riscaldamento:
Autonomo
Tipo Impianto:
Radiatori
Fonte Energetica:
Metano
Accesso Disabili:
No
Mappa
Via Campana di Sotto , - Lonato del Garda (BS)
Richiedi informazioni
Invia
Cookie preference