Acquisto Assistito - in Asta e Pre-Asta

In vendita
Appartamento
Cingia de' Botti
18.668 €
Descrizione
Acquisto Assistito in Asta Giudiziaria
Per maggiori proposte visita il sito dell’agenzia: www.asteagency.com

Verifica fattibilità d’acquisto in PRE-ASTA


DATA ASTA : 15/01/26


Disponibilità: Libero al decreto di trasferimento.

UBICAZIONE E DESCRIZIONE:
Indirizzo: Via CA' DE' CORTI, 9 Cingia de' Botti CR

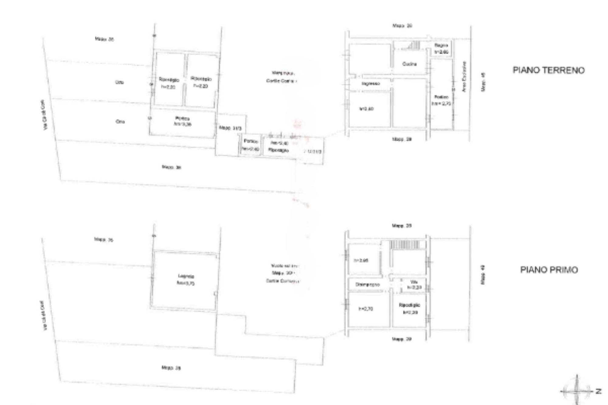
Descrizione sintetica:
Abitazione con fabbricati accessori composta: al piano terra da soggiorno, pranzo, cucina, bagno e due ripostigli; al primo piano da camera da letto, due stanze, bagno, ripostiglio. I locali accessori (ex fabbricati agricoli) risultano così composti: al piano terra, portico con ex pollaio, due ripostigli, porticato aperto e orto; al primo piano, legnaia.



Aste Agency SRL offre il servizio di assistenza per acquistare tramite un mutuo con banche convenzionate. Assiste ed indirizza, dall’aggiudicazione fino alla consegna delle chiavi.

PERCHE’ COMPRARE ALL’ASTA:
- Acquisto sicuro tramite Tribunale;
- Prezzo inferiore rispetto al mercato libero, quindi rata del mutuo più bassa;
- Banche convenzionate con i Tribunali;
- Nessun vincolo di prezzo nella rivendita e nella locazione.

Le Aste Giudiziarie sono soluzioni abitative a prezzi unici, in quanto si compera ad un prezzo inferiore, paragonato alla realtà proibitiva del mercato libero, e l’investimento immobiliare risulta essere sicuramente conveniente.
Per maggiori delucidazioni vi invitiamo a contattarci. Sarà nostra premura fissare un appuntamento in studio e trasferirvi tutte le informazioni necessarie per un’attenta e serena valutazione.

ASTE AGENCY SRL – Contattateci per un appuntamento presso uno dei nostri uffici o in videochiamata.



Caratteristiche principali
Codice:
144.22.1.150126.CR
Città:
Cingia de' Botti
Categoria:
Appartamento
Locali:
5
Camere:
1
Bagni:
2
Mq:
471
Piano:
Terra
Anno:
1967
Classe energetica:
G
Stato Immobile:
Buono
Grado:
Medio
Lati Liberi:
3
Arredi:
Non Arredato
Tipo Cucina:
Abitabile
Riscaldamento:
Autonomo
Fonte Energetica:
Metano
Accesso Disabili:
No
Mappa
Via CA' DE' CORTI , 9 - Cingia de' Botti (CR)
Virtual tour
Planimetrie
Richiedi informazioni
Invia
Cookie preference