Acquisto Assistito - in Asta e Pre-Asta

In vendita
Appartamento
Gazzada Schianno
153.000 €
Descrizione
Acquisto Assistito in Asta Giudiziaria
Per maggiori proposte visita il sito dell’agenzia: www.asteagency.com

Verifica fattibilità d’acquisto in PRE-ASTA

DATA ASTA : 05/03/26

Disponibilità: Libero al decreto di trasferimento.

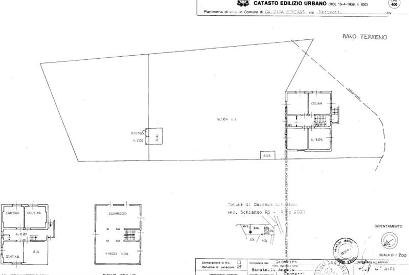
UBICAZIONE E DESCRIZIONE:
Indirizzo: Via Giacomo Matteotti, 15 Gazzada Schianno VA

Descrizione sintetica:
Unità abitativa da ristrutturare, composta al piano terra da soggiorno, cucina, due camere da letto ed un bagno. Al seminterrato si trovano la cantina ed il garage ma per la piena proprietà di 5/9. Al primo piano c'è un locale di sgombero.



Aste Agency SRL offre il servizio di assistenza per acquistare tramite un mutuo con banche convenzionate. Assiste ed indirizza, dall’aggiudicazione fino alla consegna delle chiavi.

PERCHE’ COMPRARE ALL’ASTA:
- Acquisto sicuro tramite Tribunale;
- Prezzo inferiore rispetto al mercato libero, quindi rata del mutuo più bassa;
- Banche convenzionate con i Tribunali;
- Nessun vincolo di prezzo nella rivendita e nella locazione.

Le Aste Giudiziarie sono soluzioni abitative a prezzi unici, in quanto si compera ad un prezzo inferiore, paragonato alla realtà proibitiva del mercato libero, e l’investimento immobiliare risulta essere sicuramente conveniente.
Per maggiori delucidazioni vi invitiamo a contattarci. Sarà nostra premura fissare un appuntamento in studio e trasferirvi tutte le informazioni necessarie per un’attenta e serena valutazione.

ASTE AGENCY SRL – Contattateci per un appuntamento presso uno dei nostri uffici o in videochiamata.



Caratteristiche principali
Codice:
131.19.1.050326.VA
Città:
Gazzada Schianno
Categoria:
Appartamento
Locali:
6
Camere:
2
Bagni:
2
Mq:
167
Piano:
Terra
Anno:
1967
Classe energetica:
G
Stato Immobile:
Buono
Grado:
Medio
Lati Liberi:
3
Arredi:
Non Arredato
Tipo Cucina:
Abitabile
Riscaldamento:
Autonomo
Fonte Energetica:
Metano
Accesso Disabili:
No
Mappa
Via Giacomo Matteotti , 15 - Gazzada Schianno (VA)
Planimetrie
Richiedi informazioni
Invia
Cookie preference