Acquisto Assistito - in Asta e Pre-Asta

In vendita
Appartamento
Vicenza
245.250 €
Descrizione
Acquisto Assistito in Asta Giudiziaria
Per maggiori proposte visita il sito dell’agenzia: www.asteagency.com

Verifica fattibilità d’acquisto in PRE-ASTA

DATA ASTA : 19/02/26

UBICAZIONE E DESCRIZIONE:
Via legione Antonini, 121 Vicenza VI

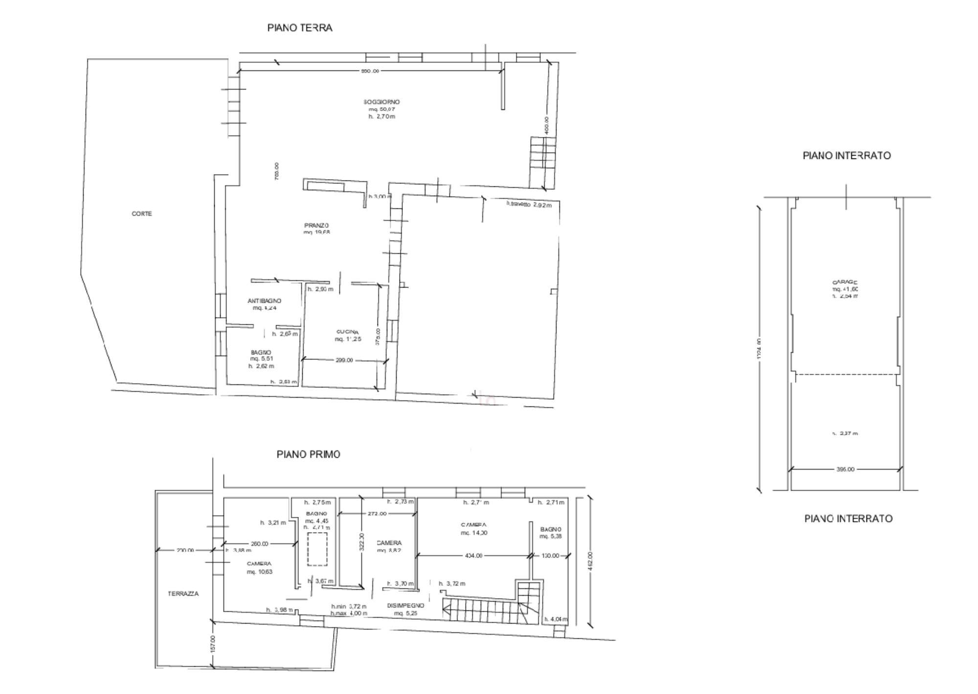
Descrizione sintetica: appartamento con garage di mq 42,00 e corte esclusiva di mq 96,77. L'appartamento è posto ai piani terra e primo, si compone di soggiorno con camino, cucina, bagno con antibagno, tre camere e bagno. Due balconi per un totale di mq 19,25.


Aste Agency SRL offre il servizio di assistenza per acquistare tramite un mutuo con banche convenzionate. Assiste ed indirizza, dall’aggiudicazione fino alla consegna delle chiavi.

PERCHE’ COMPRARE ALL’ASTA:
- Acquisto sicuro tramite Tribunale;
- Prezzo inferiore rispetto al mercato libero, quindi rata del mutuo più bassa;
- Banche convenzionate con i Tribunali;
- Nessun vincolo di prezzo nella rivendita e nella locazione.

Le Aste Giudiziarie sono soluzioni abitative a prezzi unici, in quanto si compera ad un prezzo inferiore, paragonato alla realtà proibitiva del mercato libero, e l’investimento immobiliare risulta essere sicuramente conveniente.
Per maggiori delucidazioni vi invitiamo a contattarci. Sarà nostra premura fissare un appuntamento in studio e trasferirvi tutte le informazioni necessarie per un’attenta e serena valutazione.

ASTE AGENCY SRL – Contattateci per un appuntamento presso uno dei nostri uffici o in videochiamata.
Caratteristiche principali
Codice:
129.24.190226.VI
Città:
Vicenza
Categoria:
Appartamento
Locali:
5
Camere:
3
Bagni:
2
Mq:
223
Box:
1
Mq Giardino:
96
Balconi:
2
Piano:
Terra
Anno:
1983
Classe energetica:
G
Stato Immobile:
Buono
Grado:
Medio
Tipo Cucina:
Abitabile
Riscaldamento:
Autonomo
Fonte Energetica:
Metano
Accesso Disabili:
No
Accessori
Camino
Canna Fumaria
Mappa
Via LEGIONE ANTONINI , 121 - Vicenza (VI)
Planimetrie
Richiedi informazioni
Invia
Cookie preference