Acquisto Assistito in Asta Giudiziaria

In vendita
Appartamento
Loreo
81.000 €
Descrizione
Acquisto Assistito in Asta e Pre-Asta
Per maggiori proposte visita il sito dell’agenzia: www.asteagency.com

Verifica fattibilità d’acquisto in PRE-ASTA

DATA ASTA : 18/12/2025

Disponibilità: Libero al Decreto di Trasferimento

UBICAZIONE E DESCRIZIONE:
Indirizzo: Via G. Puccini, 26-28 - Loreo (RO)

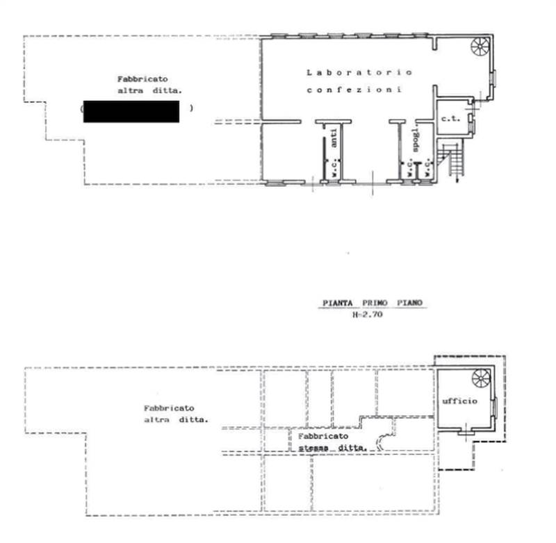
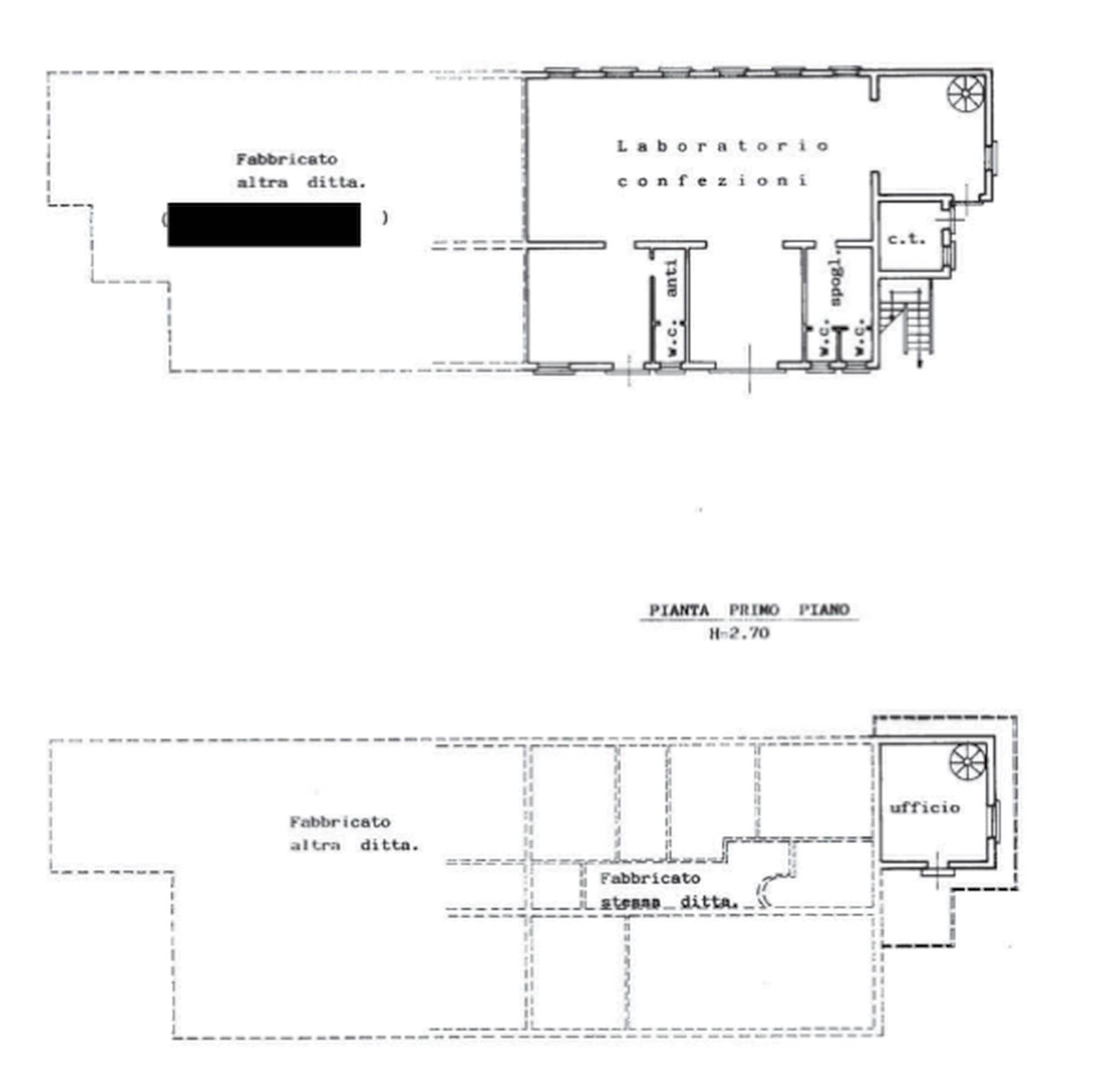
Descrizione sintetica: Abitazione di tipo civile posta al piano primo, composta da soggiorno, cucina, tre camere, due bagni, un terrazzo e un balcone, con laboratorio artigianale posto al piano terra e primo e con area scoperta di pertinenza.

Superficie lorda comm. abitazione mq: 190,00
Superficie lorda comm. laboratorio mq: 95,24

Home Agency offre il servizio di assistenza per acquistare tramite un mutuo con banche convenzionate. Assiste ed indirizza, dall’aggiudicazione fino alla consegna delle chiavi.

PERCHE’ COMPRARE ALL’ASTA:
- Acquisto sicuro tramite Tribunale;
- Prezzo inferiore rispetto al mercato libero, quindi rata del mutuo più bassa;
- Banche convenzionate con i Tribunali;
- Nessun vincolo di prezzo nella rivendita e nella locazione.

Le Aste Giudiziarie sono soluzioni abitative a prezzi unici, in quanto si compera ad un prezzo inferiore, paragonato alla realtà proibitiva del mercato libero, e l’investimento immobiliare risulta essere sicuramente conveniente.
Per maggiori delucidazioni vi invitiamo a contattarci. Sarà nostra premura fissare un appuntamento in studio e trasferirvi tutte le informazioni necessarie per un’attenta e serena valutazione.

ASTE AGENCY SRL – Contattateci per un appuntamento presso uno dei nostri uffici o in videochiamata.
Caratteristiche principali
Codice:
119.24.181225.RO
Città:
Loreo
Categoria:
Appartamento
Locali:
5
Camere:
3
Bagni:
2
Mq:
190
Mq Giardino:
360
Balconi:
1
Mq Balcone:
25,46
Terrazzi:
1
mq Terrazzo:
19,26
Piano:
1
Anno:
1977
Anno ristrutturazione:
2000
Classe energetica:
G
Stato Immobile:
Buono
Grado:
Medio
Posizione:
Centro
Panorama:
Vista Aperta
Orientamento:
Nord Est Sud
Lati Liberi:
3
Giardino:
Privato
Arredi:
Non Arredato
Tipo Soggiorno:
Soggiorno
Tipo Cucina:
Abitabile
Riscaldamento:
Autonomo
Tipo Riscaldam.:
Caldaia
Tipo Impianto:
Radiatori
Fonte Energetica:
Gas
Acqua Calda:
Autonoma
Raffrescamento:
Split
Infissi:
Legno Doppio Vetro
Serramenti:
Buono
Persiana:
Persiana PVC
Pavim. Giorno:
Ceramica
Pavim. Notte:
Ceramica
Pavim. Cucina:
Ceramica
Pavim. Bagno:
Ceramica
Pavimento:
Ceramica
Destinazione:
Artigianale
Accesso Disabili:
Nessuna Barriera
Accessori
Cancello Elettrico
Doppi Vetri
Mappa
Via G. Puccini, 26 - 28 - Loreo (RO)
Richiedi informazioni
Invia
Cookie preference