Acquisto Assistito - in Asta e Pre-Asta

In vendita
Laboratorio
Schiavon
206.475 €
Descrizione
Acquisto Assistito in Asta Giudiziaria
Per maggiori proposte visita il sito dell’agenzia: www.asteagency.com

Verifica fattibilità d’acquisto in PRE-ASTA

DATA ASTA : 10/03/26

UBICAZIONE E DESCRIZIONE:
Indirizzo: Via Scovazzolo, 18 Schiavon VI

Descrizione sintetica:
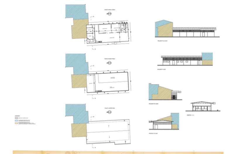
Compendio formato da due fabbricati ad uso produttivo/artigianale (confinanti ma staccati), oltre aree pertinenziali e terreni agricoli confinanti(superficie commerciale complessiva di mq. 658). I fabbricati in oggetto sono stati costruiti in tempi diversi. Il primo, a Nord del lotto, è stato realizzato in ampliamento a dei fabbricati esistenti; risulta costituito, in primo luogo, da un vano principale ad uso laboratorio (di superficie di circa mq. 108) da cui si accede ad uno spogliatoio (di superficie di circa mq. 8); da quest’ultimo si accede ad un disimpegno (di circa mq. 4) su cui si prospetta un anti w.c. (di circa mq. 3); sono presenti, quindi, un w.c. ed una doccia (di circa mq. 1,50 ciascuno); dal laboratorio anzidetto si accede ad un vano verniciatura (di circa mq. 24) e ad un vano asciugatura (di circa mq. 33); sul lato Ovest, poi, si passa alla centrale termica (di circa mq. 4); sul lato Nord, invece, è presente la zona direzionale, con un disimpegno (di circa mq. 6), un ingresso (di circa mq. 3) e, quindi, un ufficio (di circa mq. 27) direttamente collegato ad un ripostiglio (di circa mq. 6); sempre dal laboratorio, delle scale conducono al soppalco al piano primo (di circa mq. 48). L’altezza minima del laboratorio è di ml. 4,30; quella massima è di circa ml. 5,00. Il secondo edificio, posto a Sud del lotto, invece, risulta costituito da un unico vano (di superficie di circa mq. 340) con altezza minima di ml. 4,10 e altezza massima di ml. 5,15; dalla porta Sud si accede a box centrale termica (di circa mq. 6). Attorno ai fabbricati sopra descritti, è presente area pertinenziale in parte pavimentata in calcestruzzo ed in parte lasciata sterrata; la stessa funge da area di accesso/manovra e parcheggio; si segnala, peraltro, la presenza di numerosi manufatti precari.


Aste Agency SRL offre il servizio di assistenza per acquistare tramite un mutuo con banche convenzionate. Assiste ed indirizza, dall’aggiudicazione fino alla consegna delle chiavi.

PERCHE’ COMPRARE ALL’ASTA:
- Acquisto sicuro tramite Tribunale;
- Prezzo inferiore rispetto al mercato libero, quindi rata del mutuo più bassa;
- Banche convenzionate con i Tribunali;
- Nessun vincolo di prezzo nella rivendita e nella locazione.

Le Aste Giudiziarie sono soluzioni abitative a prezzi unici, in quanto si compera ad un prezzo inferiore, paragonato alla realtà proibitiva del mercato libero, e l’investimento immobiliare risulta essere sicuramente conveniente.
Per maggiori delucidazioni vi invitiamo a contattarci. Sarà nostra premura fissare un appuntamento in studio e trasferirvi tutte le informazioni necessarie per un’attenta e serena valutazione.

ASTE AGENCY SRL – Contattateci per un appuntamento presso uno dei nostri uffici o in videochiamata.
Caratteristiche principali
Codice:
112.23.1.100326.VI
Città:
Schiavon
Categoria:
Laboratorio
Locali:
5
Bagni:
2
Mq:
658
Piano:
Terra
Anno:
1969
Classe energetica:
G
Stato Immobile:
Buono
Grado:
Medio
Riscaldamento:
Autonomo
Fonte Energetica:
Metano
Raffrescamento:
Split
Accesso Disabili:
No
Accessori
Ripostiglio
Mappa
Via Scovazzolo , 18 - Schiavon (VI)
Planimetrie
Richiedi informazioni
Invia
Cookie preference