Acquisto Assistito - in Asta e Pre-Asta

In vendita
Appartamento
Montefano
119.054 €
Descrizione
Acquisto Assistito in Asta Giudiziaria
Per maggiori proposte visita il sito dell’agenzia: www.asteagency.com

Verifica fattibilità d’acquisto in PRE-ASTA

DATA ASTA : 29/01/26

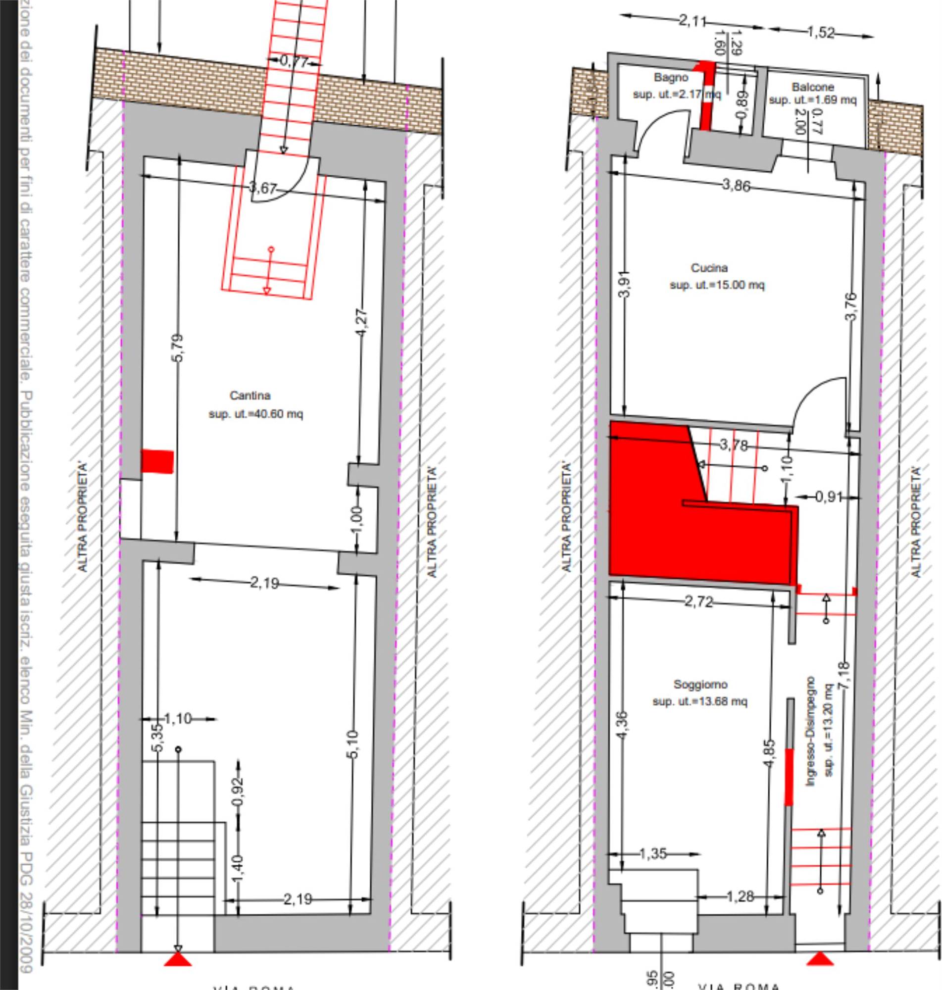
UBICAZIONE E DESCRIZIONE: Via Roma 36/38, Montefano, MC.

Descrizione sintetica: Appartamento su più livelli composto da ingresso con corridoio, soggiorno, separato dalla cucina dal vano scala ed un piccolo bagno con balcone, al quale si accede dalla cucina, il vano scala separa in due l'edificio, con camera a nord ed un secondo bagno con antibagno e piccolo studio a sud, il piano secondo si compone di due camere.

Aste Agency SRL offre il servizio di assistenza per acquistare tramite un mutuo con banche convenzionate. Assiste ed indirizza, dall’aggiudicazione fino alla consegna delle chiavi.

PERCHE’ COMPRARE ALL’ASTA:
- Acquisto sicuro tramite Tribunale;
- Prezzo inferiore rispetto al mercato libero, quindi rata del mutuo più bassa;
- Banche convenzionate con i Tribunali;
- Nessun vincolo di prezzo nella rivendita e nella locazione.

Le Aste Giudiziarie sono soluzioni abitative a prezzi unici, in quanto si compera ad un prezzo inferiore, paragonato alla realtà proibitiva del mercato libero, e l’investimento immobiliare risulta essere sicuramente conveniente.
Per maggiori delucidazioni vi invitiamo a contattarci. Sarà nostra premura fissare un appuntamento in studio e trasferirvi tutte le informazioni necessarie per un’attenta e serena valutazione.

ASTE AGENCY SRL – Contattateci per un appuntamento presso uno dei nostri uffici o in videochiamata.

Caratteristiche principali
Codice:
111.22.290126.MC
Città:
Montefano
Categoria:
Appartamento
Locali:
6
Camere:
3
Bagni:
1
Mq:
240
Mq Giardino:
39
Balconi:
1
Mq Balcone:
1
Piano:
1
Anno:
1967
Classe energetica:
G
Stato Immobile:
Buono
Grado:
Medio
Tipo Cucina:
Abitabile
Riscaldamento:
Autonomo
Fonte Energetica:
Metano
Accesso Disabili:
No
Mappa
Via Roma , 36 - Montefano (MC)
Richiedi informazioni
Invia
Cookie preference