Acquisto Assistito in Asta Giudiziaria

In vendita
Appartamento
Cernusco sul Naviglio
174.000 €
Descrizione
Acquisto Assistito in Asta Giudiziaria
Per maggiori proposte visita il sito dell’agenzia:
www.asteagency.com

Verifica fattibilità d’acquisto in PRE-ASTA
DATA ASTA : 26/03/2026

Disponibilità: Libero al Decreto di Trasferimento

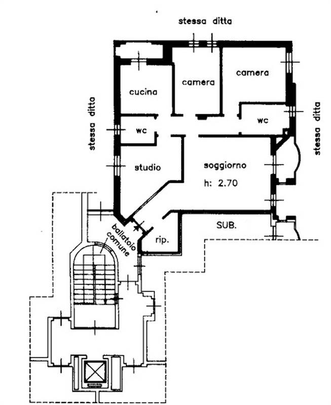
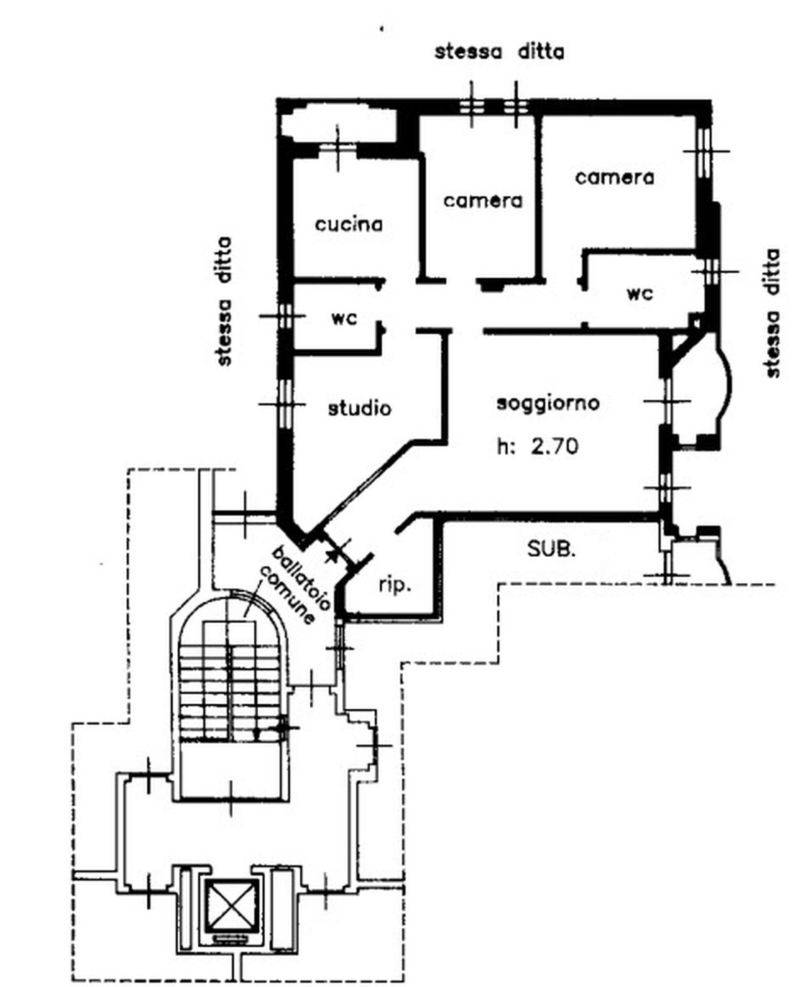
UBICAZIONE E DESCRIZIONE:
Indirizzo: Via Gaspara Stampa n. 3 - Cernusco sul Naviglio (MI)
Descrizione sintetica: Appartamento di 116 mq con cantina di 4 mq posto al 3 piano in un contesto condominiale composto da un soggiorno doppio con balcone, uno studio, una cucina con balcone, due camere da letto, due bagni e un ripostiglio.

Aste Agency SRL offre il servizio di assistenza per acquistare tramite un mutuo con banche convenzionate. Assiste ed indirizza, dall’aggiudicazione fino alla consegna delle chiavi.

PERCHE’ COMPRARE ALL’ASTA:
- Acquisto sicuro tramite Tribunale;
- Prezzo inferiore rispetto al mercato libero, quindi rata del mutuo più bassa;
- Banche convenzionate con i Tribunali;
- Nessun vincolo di prezzo nella rivendita e nella locazione.

Le Aste Giudiziarie sono soluzioni abitative a prezzi unici, in quanto si compera ad un prezzo inferiore, paragonato alla realtà proibitiva del mercato libero, e l’investimento immobiliare risulta essere sicuramente conveniente.
Per maggiori delucidazioni vi invitiamo a contattarci. Sarà nostra premura fissare un appuntamento in studio e trasferirvi tutte le informazioni necessarie per un’attenta e serena valutazione.

ASTE AGENCY SRL – Contattateci per un appuntamento presso uno dei nostri uffici o in videochiamata.
Caratteristiche principali
Codice:
1089.23.230326.MI
Città:
Cernusco sul Naviglio
Categoria:
Appartamento
Locali:
7
Camere:
2
Bagni:
2
Mq:
116
Balconi:
2
Piano:
3
Anno:
1994
Classe energetica:
G
Stato Immobile:
Buono
Grado:
Medio
Arredi:
Non Arredato
Tipo Cucina:
Abitabile
Riscaldamento:
Autonomo
Fonte Energetica:
Metano
Acqua Calda:
Autonoma
Accesso Disabili:
No
Mappa
Via Gaspara Stampa, 3 - Cernusco sul Naviglio (MI)
Richiedi informazioni
Invia
Cookie preference