Acquisto Assistito in Asta e Pre-Asta

In vendita
Appartamento
Lestizza (Galleriano)
30.000 €
Descrizione
Acquisto Assistito in Asta e Pre-Asta
Per maggiori proposte visita il sito dell’agenzia: www.asteagency.com

Verifica fattibilità d’acquisto in PRE-ASTA

DATA ASTA : 21/01/26

UBICAZIONE E DESCRIZIONE:
Indirizzo: Via Nespoledo, 23/4 - Lestizza (UD)

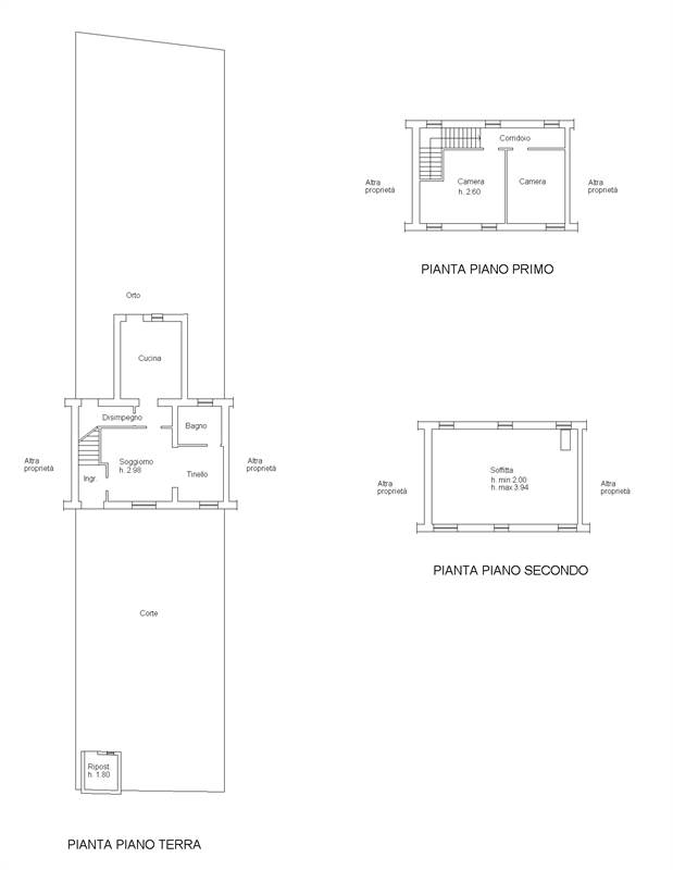
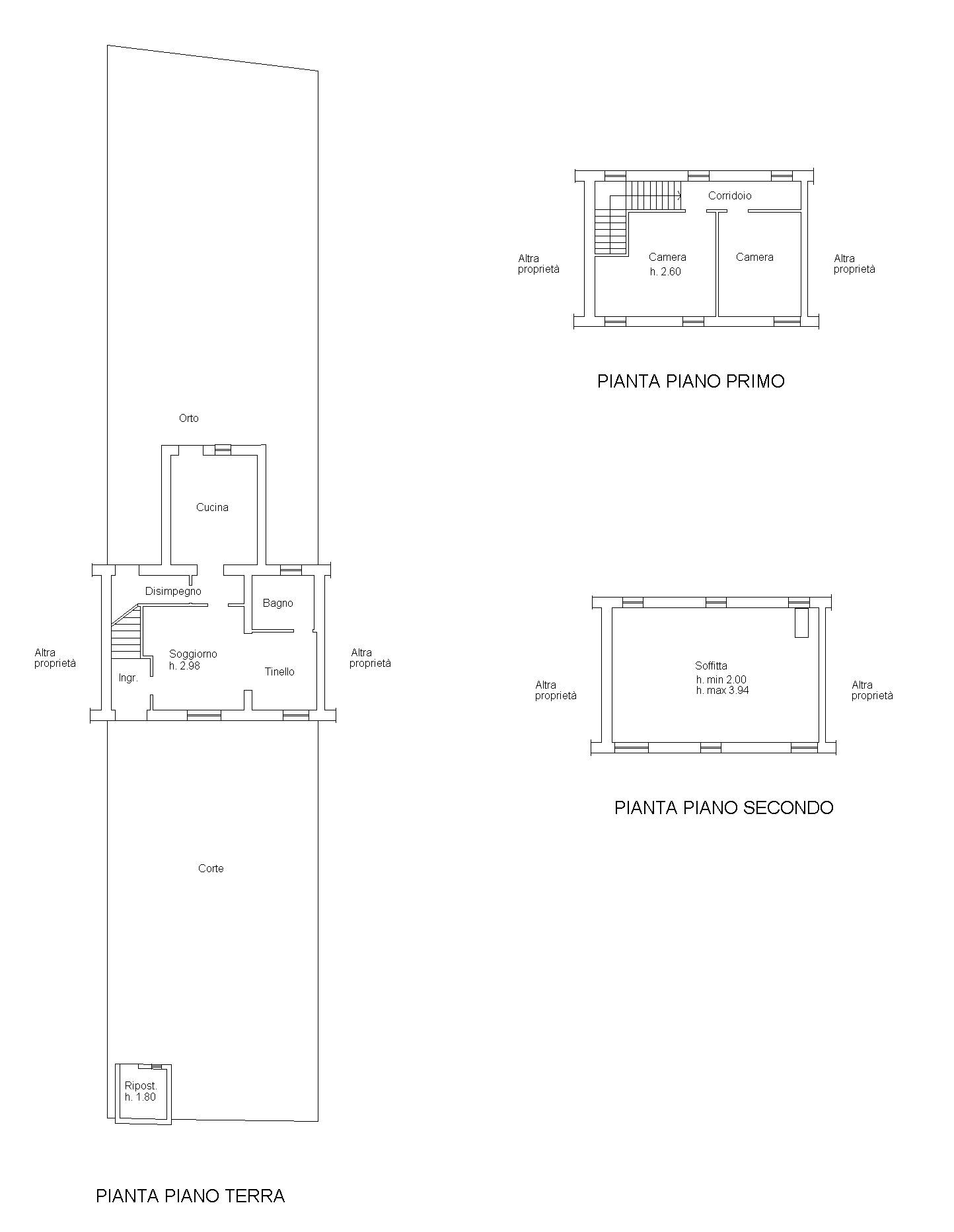
Descrizione sintetica: Piena proprietà di casa a schiera della superficie commerciale di 112,47 mq con rustico.
- Piano terra : Ing. Scala, Soggiorno/Pranzo, Bagno, Cucina sul retro;
- Piano Primo : Scala, Dis. n° due camere;
- Piano Secondo : Ampia soffitta di fatto inutilizzabile.
- Bella Corte retrostante; Corte antistante il fabbricato gravata da servitù di passaggio, mentre all'estremità Ovest, è ricavato un piccolo ripostiglio, e vi è spazio per due posti auto;

Aste Agency SRL offre il servizio di assistenza per acquistare tramite un mutuo con banche convenzionate. Assiste ed indirizza, dall’aggiudicazione fino alla consegna delle chiavi.

PERCHE’ COMPRARE ALL’ASTA:
- Acquisto sicuro tramite Tribunale;
- Prezzo inferiore rispetto al mercato libero, quindi rata del mutuo più bassa;
- Banche convenzionate con i Tribunali;
- Nessun vincolo di prezzo nella rivendita e nella locazione.

Le Aste Giudiziarie sono soluzioni abitative a prezzi unici, in quanto si compera ad un prezzo inferiore, paragonato alla realtà proibitiva del mercato libero, e l’investimento immobiliare risulta essere sicuramente conveniente.
Per maggiori delucidazioni vi invitiamo a contattarci. Sarà nostra premura fissare un appuntamento in studio e trasferirvi tutte le informazioni necessarie per un’attenta e serena valutazione.

ASTE AGENCY SRL – Contattateci per un appuntamento presso uno dei nostri uffici o in videochiamata.
Caratteristiche principali
Codice:
108.24.1.210126.UD
Città:
Lestizza (Galleriano)
Categoria:
Appartamento
Locali:
4
Camere:
2
Bagni:
1
Mq:
112,47
Piano:
Terra
Anno:
1900
Classe energetica:
G
Stato Immobile:
Buono
Grado:
Medio
Posizione:
Campagna
Giardino:
Privato
Arredi:
Non Arredato
Tipo Soggiorno:
Soggiorno
Tipo Cucina:
Abitabile
Riscaldamento:
Autonomo
Tipo Riscaldam.:
Termocamino
Tipo Impianto:
Aria
Fonte Energetica:
Pellet
Acqua Calda:
Autonoma
Raffrescamento:
Split
Infissi:
Alluminio
Serramenti:
Buono
Persiana:
Oscurante Legno
Pavim. Giorno:
Ceramica
Pavim. Notte:
Parquet
Pavim. Cucina:
Ceramica
Pavim. Bagno:
Ceramica
Accesso Disabili:
No
Accesso interno disabili:
Parziale
Accessori
Aria Condizionata
Canna Fumaria
Stufa a Pellet
Mappa
Via Nespoledo 33050, 23 - Lestizza (UD)
Richiedi informazioni
Invia
Cookie preference