Acquisto Assistito in Asta e Pre-Asta

In vendita
Appartamento
Mola di Bari
39.375 €
Descrizione
Acquisto Assistito in Asta e Pre-Asta
Per maggiori proposte visita il sito dell’agenzia: www.asteagency.com

Verifica fattibilità d’acquisto in PRE-ASTA

DATA ASTA: 17/03/2026

UBICAZIONE E DESCRIZIONE:
Via Foggia, 94, 70042 Mola di Bari Bari

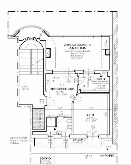
Descrizione sintetica: Appartamento al piano terzo costituito da ingresso-soggiorno che si affaccia sulla veranda scoperta con tettoia adibita a cucina. La zona notte è composta da una camera da letto, un bagno e una cameretta da letto posizionata in un vano individuato come cucina. Balcone di mq 5,05. Deposito di 1,00 mq ed il lastrico solare (ad uso esclusivo dell’esecutato) di 41,60 mq, che ospita un locale di 9,80 mq.

Aste Agency SRL offre il servizio di assistenza per acquistare tramite un mutuo con banche convenzionate. Assiste ed indirizza, dall’aggiudicazione fino alla consegna delle chiavi.

PERCHE’ COMPRARE ALL’ASTA:
- Acquisto sicuro tramite Tribunale;
- Prezzo inferiore rispetto al mercato libero, quindi rata del mutuo più bassa;
- Banche convenzionate con i Tribunali;
- Nessun vincolo di prezzo nella rivendita e nella locazione.

Le Aste Giudiziarie sono soluzioni abitative a prezzi unici, in quanto si compera ad un prezzo inferiore, paragonato alla realtà proibitiva del mercato libero, e l’investimento immobiliare risulta essere sicuramente conveniente.
Per maggiori delucidazioni vi invitiamo a contattarci. Sarà nostra premura fissare un appuntamento in studio e trasferirvi tutte le informazioni necessarie per un’attenta e serena valutazione.

ASTE AGENCY SRL – Contattateci per un appuntamento presso uno dei nostri uffici o in videochiamata.
Caratteristiche principali
Codice:
10.24.1.170326.BA
Città:
Mola di Bari
Categoria:
Appartamento
Locali:
3
Camere:
2
Bagni:
1
Mq:
63
Balconi:
1
Piano:
3
Anno:
1993
Classe energetica:
G
Stato Immobile:
Buono
Grado:
Medio
Tipo Cucina:
Abitabile
Riscaldamento:
Autonomo
Tipo Impianto:
Radiatori
Fonte Energetica:
Metano
Accesso Disabili:
No
Accessori
Ascensore
Mappa
Via foggia, 94 - Mola di Bari (BA)
Planimetrie
Richiedi informazioni
Invia
Cookie preference