Acquisto Assistito in Asta Giudiziaria

In vendita
Appartamento
Rovato
49.157 €
Descrizione
Acquisto Assistito in Asta Giudiziaria
Per maggiori proposte visita il sito dell’agenzia:
www.asteagency.com

Verifica fattibilità d’acquisto in PRE-ASTA
DATA ASTA : 10/10/2025

Disponibilità: Libero al Decreto di Trasferimento

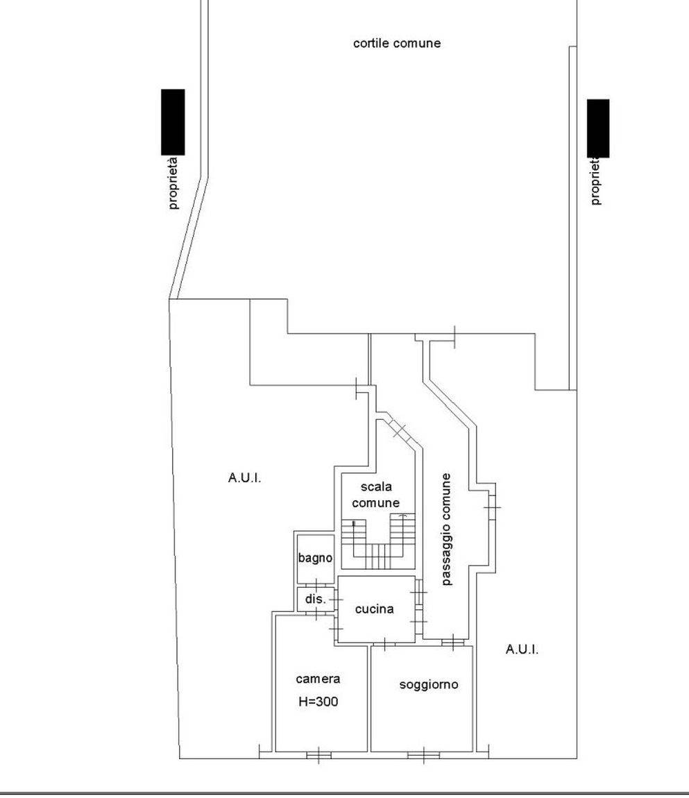
UBICAZIONE E DESCRIZIONE:
Indirizzo: Via XX Settembre n. 13 Rovato (BS)
Descrizione sintetica: L’unità immobiliare è costituita da un appartamento ubicato al piano terra in posizione centrale nel corpo nord del condominio, e da una cantina di circa 8 mq esclusiva situata al piano interrato. Dalla porta d’ingresso si entra direttamente nella cucina abitabile, dotata di finestra alta verso il corridoio comune. La cucina immette nel soggiorno, anch’esso dotato di finestra alta verso il corridoio comune che al momento è adibito anche a stanza da letto. La cucina immette inoltre sia nell’antibagno/lavanderia, dal quale si entra sia nel bagno cieco, sia nella camera matrimoniale, con finestra. La camera matrimoniale è collegata con porta direttamente anche all’antibagno e, di conseguenza, al bagno. La cucina, con piastrelle in ceramica fino all’altezza di cm 160 e paraschizzi adesivo in plastica, foro di ventilazione verso il corridoio comune esterno, è dotata di caldaia. Il servizio igienico cieco è dotato di ventilazione meccanica ed è completo di tazza wc, bidet, lavabo con colonna e box doccia, con rivestimento in piastrelle di ceramica di altezza cm 200.
Aste Agency SRL offre il servizio di assistenza per acquistare tramite un mutuo con banche convenzionate. Assiste ed indirizza, dall’aggiudicazione fino alla consegna delle chiavi.

PERCHE’ COMPRARE ALL’ASTA:
- Acquisto sicuro tramite Tribunale;
- Prezzo inferiore rispetto al mercato libero, quindi rata del mutuo più bassa;
- Banche convenzionate con i Tribunali;
- Nessun vincolo di prezzo nella rivendita e nella locazione.

Le Aste Giudiziarie sono soluzioni abitative a prezzi unici, in quanto si compera ad un prezzo inferiore, paragonato alla realtà proibitiva del mercato libero, e l’investimento immobiliare risulta essere sicuramente conveniente.
Per maggiori delucidazioni vi invitiamo a contattarci. Sarà nostra premura fissare un appuntamento in studio e trasferirvi tutte le informazioni necessarie per un’attenta e serena valutazione.

ASTE AGENCY SRL – Contattateci per un appuntamento presso uno dei nostri uffici o in videochiamata.
Caratteristiche principali
Codice:
528.23.101025.BS
Città:
Rovato
Categoria:
Appartamento
Locali:
4
Camere:
1
Bagni:
1
Mq:
56,22
Piano:
Terra
Anno:
1967
Classe energetica:
G
Stato Immobile:
Buono
Grado:
Medio
Arredi:
Non Arredato
Tipo Soggiorno:
Soggiorno
Tipo Cucina:
Abitabile
Riscaldamento:
Autonomo
Tipo Riscaldam.:
Caldaia
Tipo Impianto:
Radiatori
Fonte Energetica:
Metano
Acqua Calda:
Autonoma
Accesso Disabili:
No
Mappa
Via XX Settembre, 13 - Rovato (BS)
Virtual tour
Richiedi informazioni
Invia
Cookie preference