Acquisto Assistito - in Asta e Pre-Asta

In vendita
Casa singola
Torricella del Pizzo
13.838 €
Descrizione
Acquisto Assistito - in Asta e Pre-Asta
Per maggiori proposte visita il sito dell’agenzia: www.asteagency.com

Verifica fattibilità d’acquisto in PRE-ASTA

DATA ASTA: 19/05/2026

UBICAZIONE E DESCRIZIONE:
Via Roma79 - 26040 - Torricella del Pizzo (CR)

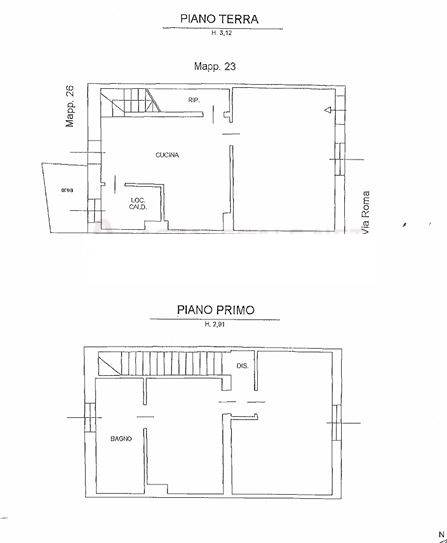
Descrizione sintetica: Fabbricato residenziale, disposto a piano terra e primo composto da ingresso/soggiorno, cucina, ripostiglio/sottoscala, locale caldaia, vano scala ed all’esterno piccola area scoperta. Al primo piano, oltre al vano scala, disimpegno, un bagno e due camere.

Aste Agency SRL offre il servizio di assistenza per acquistare tramite un mutuo con banche convenzionate. Assiste ed indirizza, dall’aggiudicazione fino alla consegna delle chiavi.

PERCHE’ COMPRARE ALL’ASTA:
- Acquisto sicuro tramite Tribunale;
- Prezzo inferiore rispetto al mercato libero, quindi rata del mutuo più bassa;
- Banche convenzionate con i Tribunali;
- Nessun vincolo di prezzo nella rivendita e nella locazione.

Le Aste Giudiziarie sono soluzioni abitative a prezzi unici, in quanto si compera ad un prezzo inferiore, paragonato alla realtà proibitiva del mercato libero, e l’investimento immobiliare risulta essere sicuramente conveniente.
Per maggiori delucidazioni vi invitiamo a contattarci. Sarà nostra premura fissare un appuntamento in studio e trasferirvi tutte le informazioni necessarie per un’attenta e serena valutazione.

ASTE AGENCY SRL – Contattateci per un appuntamento presso uno dei nostri uffici o in videochiamata.
Caratteristiche principali
Codice:
40.25.190526.CR
Città:
Torricella del Pizzo
Categoria:
Casa singola
Locali:
4
Camere:
2
Bagni:
1
Mq:
89
Piano:
Terra
Anno:
1967
Classe energetica:
G
Stato Immobile:
Buono
Grado:
Medio
Tipo Cucina:
Abitabile
Riscaldamento:
Autonomo
Tipo Impianto:
Radiatori
Fonte Energetica:
Metano
Accesso Disabili:
No
Mappa
Via Roma , 79 - Torricella del Pizzo (CR)
Planimetrie
Richiedi informazioni
Invia
Cookie preference