Descrizione
Per maggiori proposte visita il sito dell’agenzia: www.asteagency.com
Verifica fattibilità d’acquisto in PRE-ASTA
DATA ASTA: 25/11/2025
Disponibilità: Libero al Decreto di Trasferimento
UBICAZIONE E DESCRIZIONE:
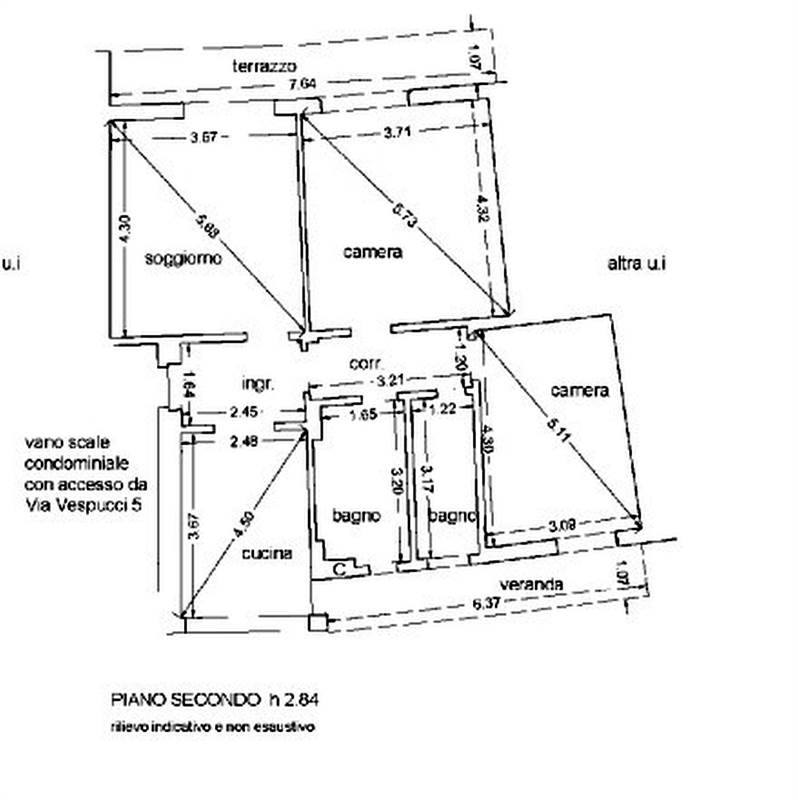
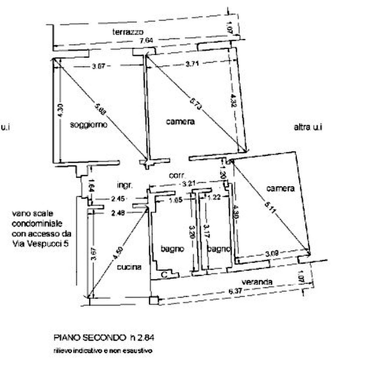
Indirizzo: Via Amerigo Vespucci 5 int.3, 36100 Vicenza VI
Descrizione sintetica:
Trattasi di appartamento ( mq 90,00) al piano secondo con cantina al piano terra. L’abitazione, inserita in un complesso residenziale e parte di un fabbricato che si sviluppa su cinque piani fuori terra . Risulta composta da cucina, soggiorno, corridoio centrale, due camere, due servizi igienici, terrazzo e veranda. La cantina è accessibile dall’esterno.
Aste Agency SRL offre il servizio di assistenza per acquistare tramite un mutuo con banche convenzionate. Assiste ed indirizza, dall’aggiudicazione fino alla consegna delle chiavi.
PERCHE’ COMPRARE ALL’ASTA:
- Acquisto sicuro tramite Tribunale;
- Prezzo inferiore rispetto al mercato libero, quindi rata del mutuo più bassa;
- Banche convenzionate con i Tribunali;
- Nessun vincolo di prezzo nella rivendita e nella locazione.
Le Aste Giudiziarie sono soluzioni abitative a prezzi unici, in quanto si compera ad un prezzo inferiore, paragonato alla realtà proibitiva del mercato libero, e l’investimento immobiliare risulta essere sicuramente conveniente.
Per maggiori delucidazioni vi invitiamo a contattarci. Sarà nostra premura fissare un appuntamento in studio e trasferirvi tutte le informazioni necessarie per un’attenta e serena valutazione.
ASTE AGENCY SRL – Contattateci per un appuntamento presso uno dei nostri uffici o in videochiamata.