Acquisto Assistito in Asta e Pre-Asta

In vendita
Appartamento
Margherita di Savoia
48.750 €
Descrizione
Acquisto Assistito in Asta Giudiziaria
Per maggiori proposte visita il sito dell’agenzia: www.asteagency.com

Verifica fattibilità d’acquisto in PRE-ASTA

DATA ASTA : 22/05/26

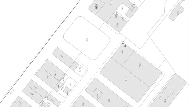
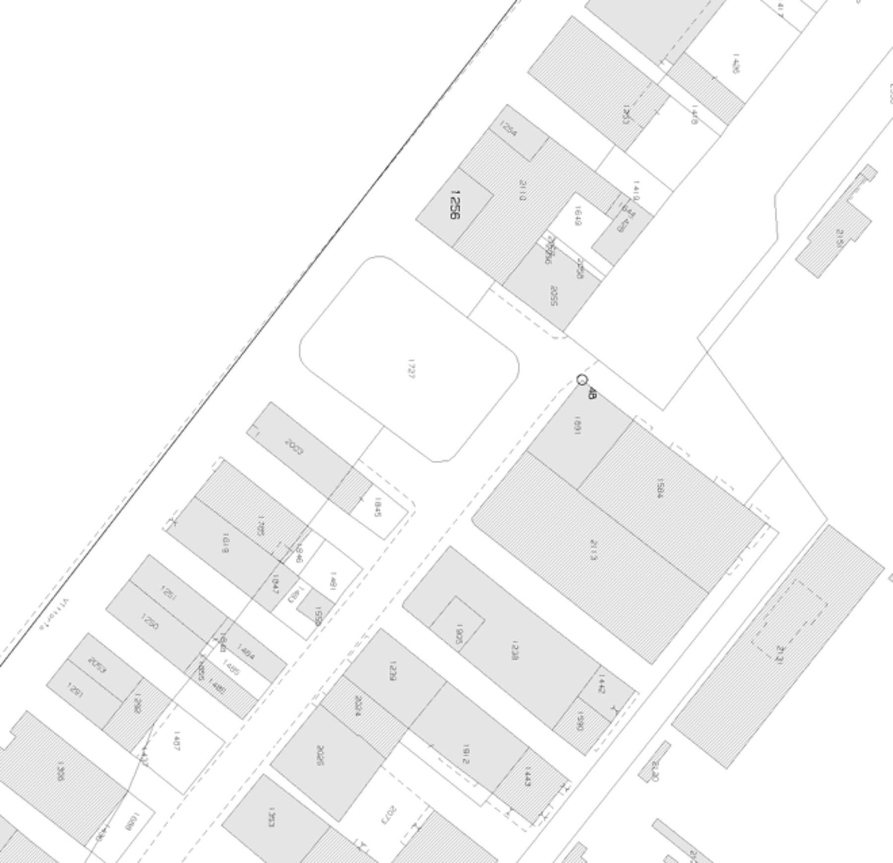
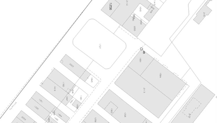
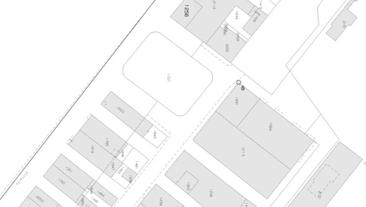
UBICAZIONE E DESCRIZIONE:
Piazza Vincenzo Russo, 1 e Via Vittorio Veneto 44 Margherita di Savoia BT

Descrizione sintetica: abitazione piano terra, con doppio accesso indipendente, e si sviluppa su un unico livello. È composta da un vano adibito a soggiorno/pranzo/cucina; una camera da letto; un disimpegno e un bagno.


Aste Agency SRL offre il servizio di assistenza per acquistare tramite un mutuo con banche convenzionate. Assiste ed indirizza, dall’aggiudicazione fino alla consegna delle chiavi.

PERCHE’ COMPRARE ALL’ASTA:
- Acquisto sicuro tramite Tribunale;
- Prezzo inferiore rispetto al mercato libero, quindi rata del mutuo più bassa;
- Banche convenzionate con i Tribunali;
- Nessun vincolo di prezzo nella rivendita e nella locazione.

Le Aste Giudiziarie sono soluzioni abitative a prezzi unici, in quanto si compera ad un prezzo inferiore, paragonato alla realtà proibitiva del mercato libero, e l’investimento immobiliare risulta essere sicuramente conveniente.
Per maggiori delucidazioni vi invitiamo a contattarci. Sarà nostra premura fissare un appuntamento in studio e trasferirvi tutte le informazioni necessarie per un’attenta e serena valutazione.

ASTE AGENCY SRL – Contattateci per un appuntamento presso uno dei nostri uffici o in videochiamata.
Caratteristiche principali
Codice:
338.23.220526.BT
Città:
Margherita di Savoia
Categoria:
Appartamento
Locali:
2
Camere:
1
Bagni:
1
Mq:
55
Piano:
Terra
Anno:
1967
Classe energetica:
G
Stato Immobile:
Buono
Grado:
Medio
Tipo Cucina:
Angolo Cottura
Riscaldamento:
No
Accesso Disabili:
No
Accessori
Doppio Ingresso
Ripostiglio
Mappa
Piazza comm. vincenzo russo n. 1 e via vittorio veneto , 44 - Margherita di Savoia (BT)
Planimetrie
Richiedi informazioni
Invia
Cookie preference