Acquisto Assistito in Asta e Pre-Asta

In vendita
Villa Bifamiliare
Urgnano
103.343 €
Descrizione
Acquisto Assistito in Asta e Pre-Asta
Per maggiori proposte visita il sito dell’agenzia: www.asteagency.com

Verifica fattibilità d’acquisto in PRE-ASTA

DATA ASTA: 28/05/2026

UBICAZIONE E DESCRIZIONE:
Via Gasgnoli 97, Urgnano (BG)


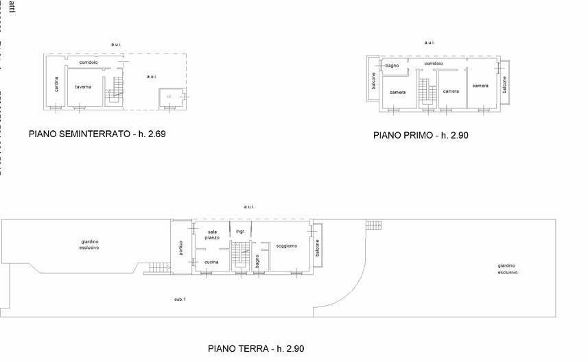
Descrizione sintetica: Abitazione unifamiliare cielo-terra disposta su tre livelli composta al piano terra da ingresso, soggiorno, cucina, locali accessori e porticato di 14 mq con balcone di 5 mq; al piano primo da tre camere da letto, bagno e balconi di 10 mq; al piano interrato da taverna di 50 mq, locali accessori e autorimessa collegata di21 mq; completa la proprietà un giardino pertinenziale circostante di circa 500 mq.


Aste Agency SRL offre il servizio di assistenza per acquistare tramite un mutuo con banche convenzionate. Assiste ed indirizza, dall’aggiudicazione fino alla consegna delle chiavi.

PERCHE’ COMPRARE ALL’ASTA:
- Acquisto sicuro tramite Tribunale;
- Prezzo inferiore rispetto al mercato libero, quindi rata del mutuo più bassa;
- Banche convenzionate con i Tribunali;
- Nessun vincolo di prezzo nella rivendita e nella locazione.

Le Aste Giudiziarie sono soluzioni abitative a prezzi unici, in quanto si compera ad un prezzo inferiore, paragonato alla realtà proibitiva del mercato libero, e l’investimento immobiliare risulta essere sicuramente conveniente.
Per maggiori delucidazioni vi invitiamo a contattarci. Sarà nostra premura fissare un appuntamento in studio e trasferirvi tutte le informazioni necessarie per un’attenta e serena valutazione.

ASTE AGENCY SRL – Contattateci per un appuntamento presso uno dei nostri uffici o in videochiamata.
Caratteristiche principali
Codice:
272.21.280526.BG
Città:
Urgnano
Categoria:
Villa Bifamiliare
Locali:
6
Camere:
3
Bagni:
2
Mq:
225
Box:
1
Balconi:
1
Piano:
Terra
Anno:
1978
Classe energetica:
G
Stato Immobile:
Buono
Grado:
Medio
Tipo Cucina:
Abitabile
Riscaldamento:
Autonomo
Tipo Impianto:
Radiatori
Fonte Energetica:
Metano
Accesso Disabili:
No
Mappa
Via Gasgnoli , 97 - Urgnano (BG)
Planimetrie
Richiedi informazioni
Invia
Cookie preference