Acquisto Assistito in Asta e Pre-Asta

In vendita
Villa
Vergiate
246.000 €
Descrizione
Acquisto Assistito in Asta e Pre-Asta
Per maggiori proposte visita il sito dell’agenzia: www.asteagency.com

Verifica fattibilità d’acquisto in PRE-ASTA

DATA ASTA: 18/05/2026

UBICAZIONE E DESCRIZIONE:
Via don Enrico Locatelli 38, Vergiate VA

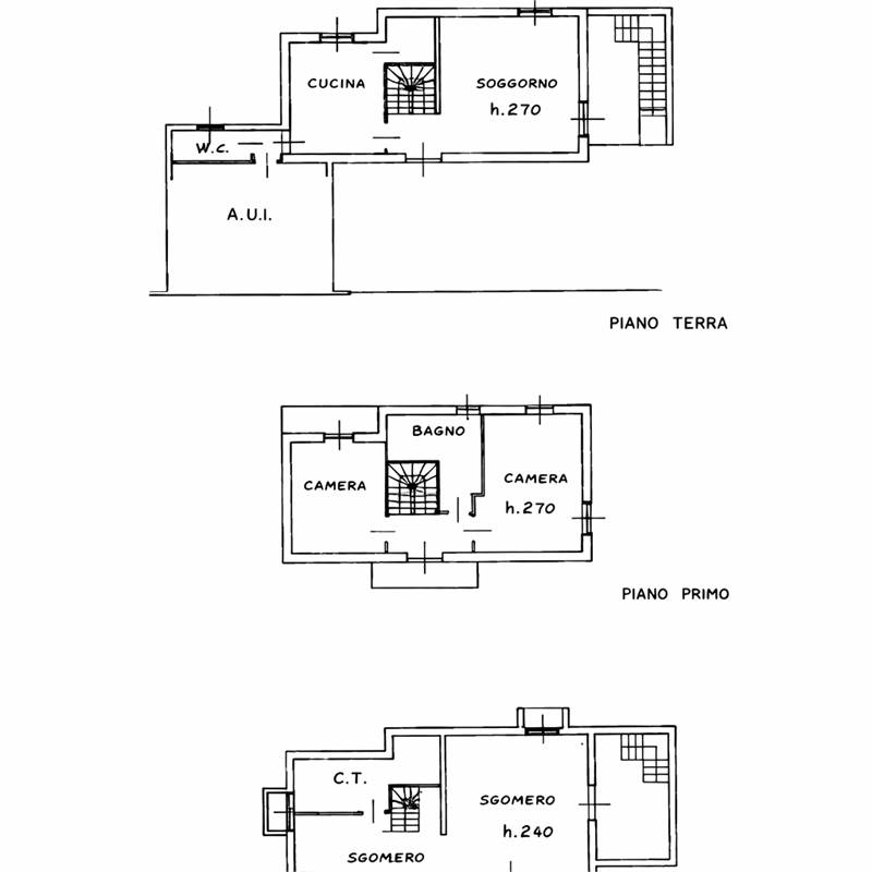
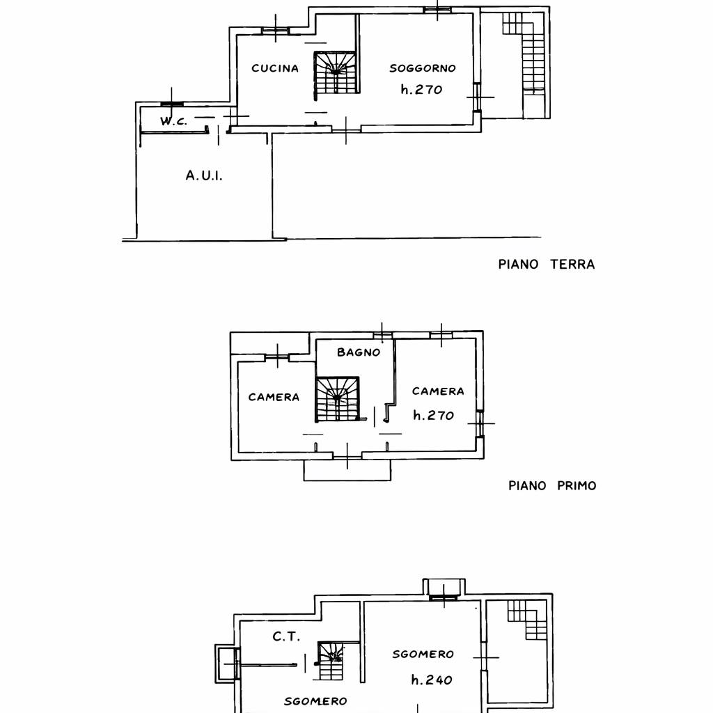
Descrizione sintetica: villa singola su quattro livelli collegati da scala interna composta da piano interrato con ampio locale e due ripostigli; piano terra con soggiorno, cucina, dispensa, disimpegno e bagno; piano primo con due camere, disimpegno e bagno; sottotetto con locale adibito a camera; due balconi totali circa 8 mq; giardino 793 mq; piscina interrata circa 40 mq; box auto doppio 33 mq; posti auto esterni.

Aste Agency SRL offre il servizio di assistenza per acquistare tramite un mutuo con banche convenzionate. Assiste ed indirizza, dall’aggiudicazione fino alla consegna delle chiavi.

PERCHE’ COMPRARE ALL’ASTA:
- Acquisto sicuro tramite Tribunale;
- Prezzo inferiore rispetto al mercato libero, quindi rata del mutuo più bassa;
- Banche convenzionate con i Tribunali;
- Nessun vincolo di prezzo nella rivendita e nella locazione.

Le Aste Giudiziarie sono soluzioni abitative a prezzi unici, in quanto si compera ad un prezzo inferiore, paragonato alla realtà proibitiva del mercato libero, e l’investimento immobiliare risulta essere sicuramente conveniente.
Per maggiori delucidazioni vi invitiamo a contattarci. Sarà nostra premura fissare un appuntamento in studio e trasferirvi tutte le informazioni necessarie per un’attenta e serena valutazione.

ASTE AGENCY SRL – Contattateci per un appuntamento presso uno dei nostri uffici o in videochiamata.
Caratteristiche principali
Codice:
26.25.5.180526.VA
Città:
Vergiate
Categoria:
Villa
Locali:
6
Camere:
3
Bagni:
2
Mq:
226
Box:
1
Posti auto:
2
Balconi:
2
Piano:
Terra
Anno:
1999
Classe energetica:
G
Stato Immobile:
Buono
Grado:
Medio
Tipo Cucina:
Abitabile
Riscaldamento:
Autonomo
Tipo Impianto:
Radiatori
Fonte Energetica:
Metano
Accesso Disabili:
No
Accessori
Piscina
Mappa
Via don Enrico Locatelli, 38 - Vergiate (VA)
Planimetrie
Richiedi informazioni
Invia
Cookie preference