Descrizione
Acquisto Assistito in Asta e Pre-Asta
Per maggiori proposte visita il sito dell’agenzia: www.asteagency.com
Verifica fattibilità d’acquisto in PRE-ASTA
DATA ASTA: 21/05/2026
UBICAZIONE E DESCRIZIONE:
Via Brescia 52 - 25024 – Leno (BS)
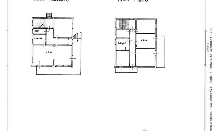
Descrizione sintetica: Villa unifamiliare indipendente disposta su tre livelli (piano interrato, piano terra e piano primo).
Piano interrato: taverna, cantina e locale di sgombero con lavatoio.
Piano terra: ingresso, sala, cucina, bagno, soggiorno.
Piano primo: corridoio, quattro camere, bagno e locale lavanderia, due balconi 21 mq.
Giardino 52 mq.
Aste Agency SRL offre il servizio di assistenza per acquistare tramite un mutuo con banche convenzionate. Assiste ed indirizza, dall’aggiudicazione fino alla consegna delle chiavi.
PERCHE’ COMPRARE ALL’ASTA:
- Acquisto sicuro tramite Tribunale;
- Prezzo inferiore rispetto al mercato libero, quindi rata del mutuo più bassa;
- Banche convenzionate con i Tribunali;
- Nessun vincolo di prezzo nella rivendita e nella locazione.
Le Aste Giudiziarie sono soluzioni abitative a prezzi unici, in quanto si compera ad un prezzo inferiore, paragonato alla realtà proibitiva del mercato libero, e l’investimento immobiliare risulta essere sicuramente conveniente.
Per maggiori delucidazioni vi invitiamo a contattarci. Sarà nostra premura fissare un appuntamento in studio e trasferirvi tutte le informazioni necessarie per un’attenta e serena valutazione.
ASTE AGENCY SRL – Contattateci per un appuntamento presso uno dei nostri uffici o in videochiamata.