Descrizione
Acquisto Assistito in Asta Giudiziaria
Per maggiori proposte visita il sito dell’agenzia: www.asteagency.com
Verifica fattibilità d’acquisto in PRE-ASTA
DATA ASTA : 05/11/25
Disponibilità: Libero
UBICAZIONE E DESCRIZIONE:
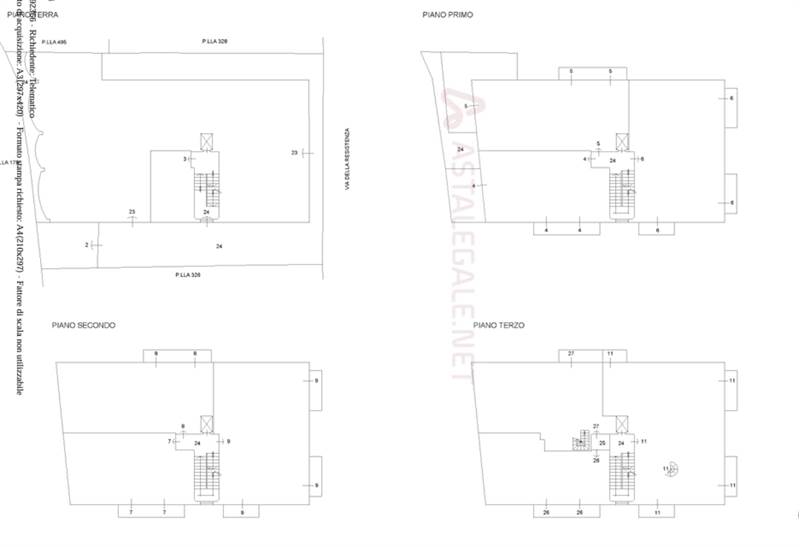
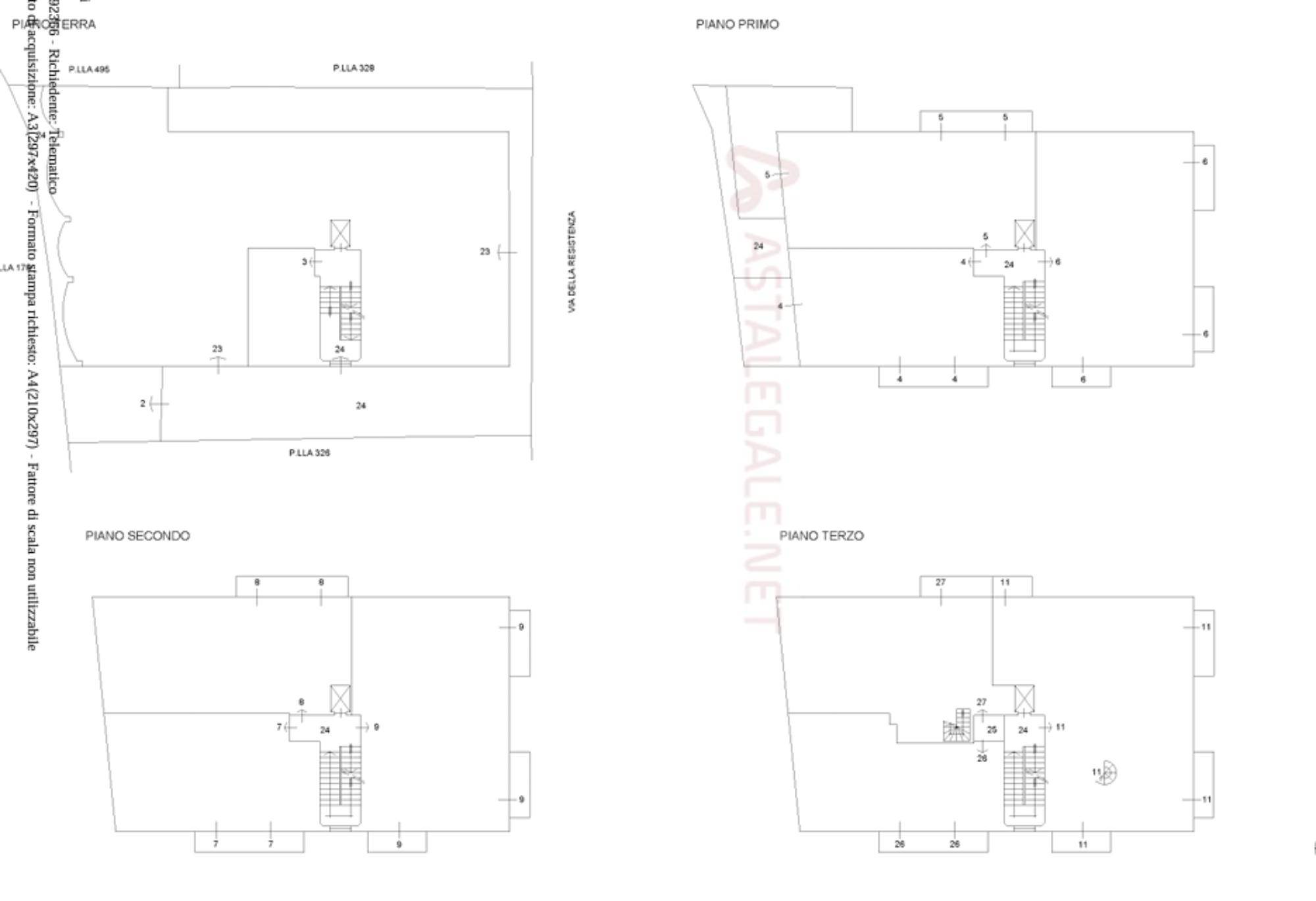
Indirizzo: Via della Resistenza 14, 62019 Recanati MC
Descrizione sintetica:
Appartamento al piano 1° (con cantina di mq 5,55 al piano S1°) di una palazzina a 5 piani dei quali 1 interrato e 4 fuori terra sita in Recanati via delle Resistenza n. 14. L'appartamento si compone dei seguenti vani: ingresso, cucina/soggiorno, n. 2 camere, bagno, corridoio, n. 2 terrazzi di mq 17,33, una cantina al piano sottostrada 1°. L'immobile è dotato di ascensore condominiale che serve tutti i piani della palazzina, vano scala condominiale che serve anch'esso tutti i piani.
Aste Agency SRL offre il servizio di assistenza per acquistare tramite un mutuo con banche convenzionate. Assiste ed indirizza, dall’aggiudicazione fino alla consegna delle chiavi.
PERCHE’ COMPRARE ALL’ASTA:
- Acquisto sicuro tramite Tribunale;
- Prezzo inferiore rispetto al mercato libero, quindi rata del mutuo più bassa;
- Banche convenzionate con i Tribunali;
- Nessun vincolo di prezzo nella rivendita e nella locazione.
Le Aste Giudiziarie sono soluzioni abitative a prezzi unici, in quanto si compera ad un prezzo inferiore, paragonato alla realtà proibitiva del mercato libero, e l’investimento immobiliare risulta essere sicuramente conveniente.
Per maggiori delucidazioni vi invitiamo a contattarci. Sarà nostra premura fissare un appuntamento in studio e trasferirvi tutte le informazioni necessarie per un’attenta e serena valutazione.
ASTE AGENCY SRL – Contattateci per un appuntamento presso uno dei nostri uffici o in videochiamata.