Acquisto Assistito in Asta e Pre-Asta

In vendita
Appartamento
Padova
62.250 €
Descrizione
Acquisto Assistito in Asta e Pre-Asta
Per maggiori proposte visita il sito dell’agenzia: www.asteagency.com

Verifica fattibilità d’acquisto in PRE-ASTA

DATA ASTA : 25/11/2025

Disponibilità: Libero al Decreto di Trasferimento

UBICAZIONE E DESCRIZIONE:
Indirizzo: Via f. confalonieri 40/b - Padova (PD)

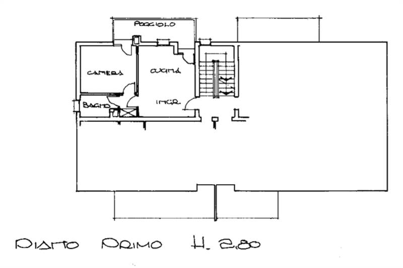
Descrizione sintetica: Piena proprietà di appartamento al piano primo con garage di pertinenza al piano seminterrato, per una superficie commerciale calcolata di mq. 56,00.
l'appartamento al piano 1° è formato da: ingresso-soggiorno in unico ambiente, disimpegno, una camera da letto, un locale bagno dotato di vasca e un terrazzino-poggiolo ove è stata ricavata la zona cucina mediante chiusura dell’intero perimetro con serramenti vetrati apribili;
Il garage al piano seminterrato, di pertinenza esclusiva, è dimensionato per il ricovero di un’auto ed è dotato di illuminazione e portone basculante metallico.

Aste Agency SRL offre il servizio di assistenza per acquistare tramite un mutuo con banche convenzionate. Assiste ed indirizza, dall’aggiudicazione fino alla consegna delle chiavi.

PERCHE’ COMPRARE ALL’ASTA:
- Acquisto sicuro tramite Tribunale;
- Prezzo inferiore rispetto al mercato libero, quindi rata del mutuo più bassa;
- Banche convenzionate con i Tribunali;
- Nessun vincolo di prezzo nella rivendita e nella locazione.

Le Aste Giudiziarie sono soluzioni abitative a prezzi unici, in quanto si compera ad un prezzo inferiore, paragonato alla realtà proibitiva del mercato libero, e l’investimento immobiliare risulta essere sicuramente conveniente.
Per maggiori delucidazioni vi invitiamo a contattarci. Sarà nostra premura fissare un appuntamento in studio e trasferirvi tutte le informazioni necessarie per un’attenta e serena valutazione.

ASTE AGENCY SRL – Contattateci per un appuntamento presso uno dei nostri uffici o in videochiamata.
Caratteristiche principali
Codice:
137.24.251125.PD
Città:
Padova
Categoria:
Appartamento
Locali:
2
Camere:
1
Bagni:
1
Mq:
56
Box:
1
Balconi:
1
Piano:
1
Anno:
1973
Classe energetica:
G
Stato Immobile:
Buono
Grado:
Medio
Posizione:
Centro
Panorama:
Vista Aperta
Giardino:
No
Arredi:
Non Arredato
Tipo Soggiorno:
Sala da Pranzo
Tipo Cucina:
Angolo Cottura
Riscaldamento:
Centralizzato
Tipo Riscaldam.:
Caldaia
Tipo Impianto:
Radiatori
Fonte Energetica:
Metano
Acqua Calda:
Autonoma
Raffrescamento:
Split
Infissi:
Legno Doppio Vetro
Serramenti:
Buono
Persiana:
Tapparella PVC
Pavim. Giorno:
Ceramica
Pavim. Notte:
Ceramica
Pavim. Cucina:
Ceramica
Pavim. Bagno:
Cotto
Accesso Disabili:
No
Accesso interno disabili:
Non accessibile
Accessori
Aria Condizionata
Doppi Vetri
Mappa
Via f. confalonieri, 40 - Padova (PD)
Virtual tour
Planimetrie
Richiedi informazioni
Invia
Cookie preference