Acquisto Assistito in Asta Giudiziaria

In vendita
Appartamento
Poggio Rusco
69.488 €
Descrizione
Acquisto Assistito in Asta Giudiziaria
Per maggiori proposte visita il sito dell’agenzia:
www.asteagency.com

Verifica fattibilità d’acquisto in PRE-ASTA
DATA ASTA : 20/11/2025

Disponibilità: Libero al Decreto di Trasferimento

UBICAZIONE E DESCRIZIONE:
Indirizzo: Via Stoppiaro n. 17 - Dragoncello di Poggio Rusco (MN)
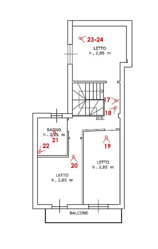
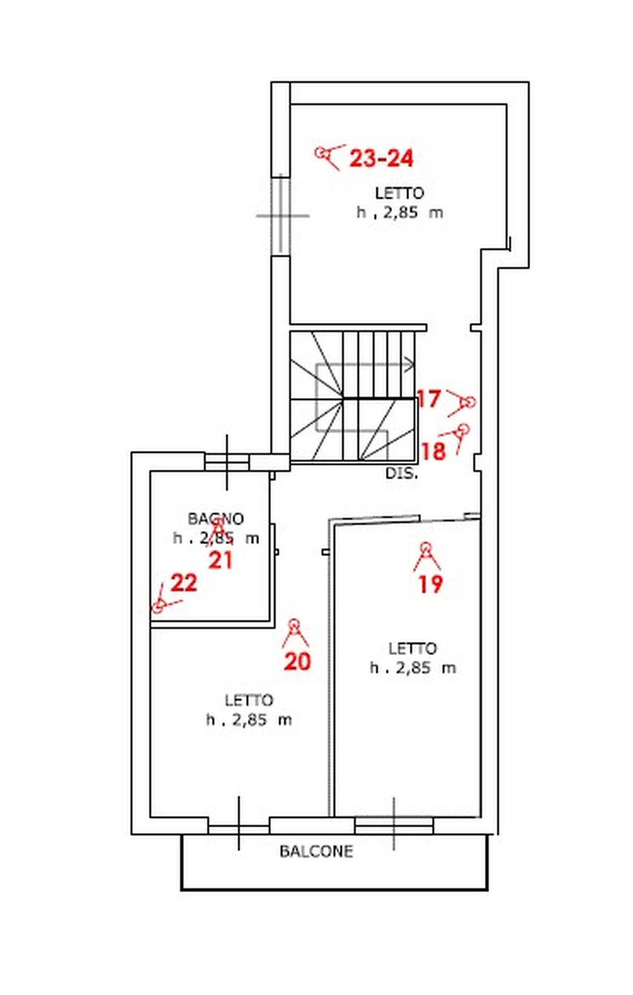
Descrizione sintetica: Appartamento per un totale di 219 mq disposto su due livelli composto al piano terra da una ampia zona soggiorno di 44,00 mq circa, con vano scale di accesso al piano primo, e locale pranzo e cucina di 20,00 mq circa, con annesso locale disimpegno di 2,90 mq circa. Al piano primo, accessibile dalla scala interna, ci sono un disimpegno di 12,00 mq circa, una camera da letto matrimoniale di 14,50 mq circa, da due camere da letto singole di 13,50 mq circa e di 12,00 mq circa. La camera più piccola ha accesso al balcone esterno di 5,50 mq circa. Al piano primo c'è inoltre un locale bagno di 5,70 mq circa. Il tutto viene completato da un garage al piano terra.

Aste Agency SRL offre il servizio di assistenza per acquistare tramite un mutuo con banche convenzionate. Assiste ed indirizza, dall’aggiudicazione fino alla consegna delle chiavi.

PERCHE’ COMPRARE ALL’ASTA:
- Acquisto sicuro tramite Tribunale;
- Prezzo inferiore rispetto al mercato libero, quindi rata del mutuo più bassa;
- Banche convenzionate con i Tribunali;
- Nessun vincolo di prezzo nella rivendita e nella locazione.

Le Aste Giudiziarie sono soluzioni abitative a prezzi unici, in quanto si compera ad un prezzo inferiore, paragonato alla realtà proibitiva del mercato libero, e l’investimento immobiliare risulta essere sicuramente conveniente.
Per maggiori delucidazioni vi invitiamo a contattarci. Sarà nostra premura fissare un appuntamento in studio e trasferirvi tutte le informazioni necessarie per un’attenta e serena valutazione.

ASTE AGENCY SRL – Contattateci per un appuntamento presso uno dei nostri uffici o in videochiamata.
Caratteristiche principali
Codice:
113.24.201125.MN
Città:
Poggio Rusco
Categoria:
Appartamento
Locali:
5
Camere:
3
Bagni:
1
Mq:
219,14
Box:
1
Balconi:
1
Piano:
Terra
Anno:
1967
Classe energetica:
G
Stato Immobile:
Buono
Grado:
Medio
Giardino:
Comune
Arredi:
Non Arredato
Tipo Cucina:
Abitabile
Riscaldamento:
Autonomo
Tipo Impianto:
Radiatori
Fonte Energetica:
Metano
Acqua Calda:
Autonoma
Accesso Disabili:
No
Mappa
Via Stoppiaro, 17 - Poggio Rusco (MN)
Virtual tour
Planimetrie
Richiedi informazioni
Invia
Cookie preference