Acquisto Assistito - in Asta e Pre-Asta

In vendita
Ufficio
Monticello Conte Otto
47.250 €
Descrizione
Acquisto Assistito in Asta Giudiziaria
Per maggiori proposte visita il sito dell’agenzia: www.asteagency.com

Verifica fattibilità d’acquisto in PRE-ASTA

DATA ASTA : 14/05/26

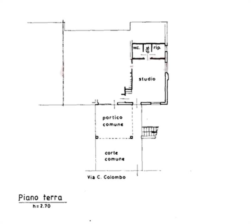
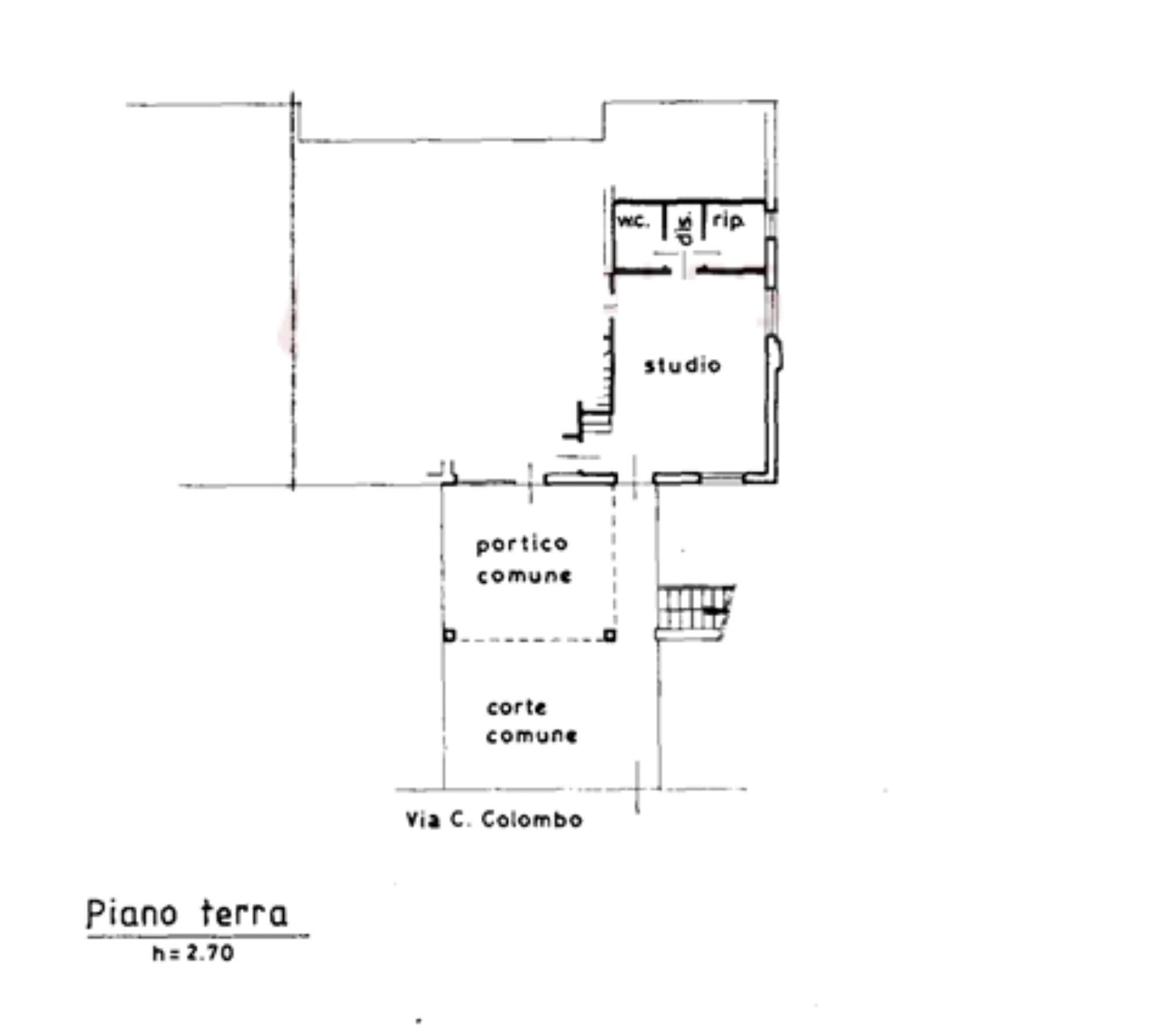
UBICAZIONE E DESCRIZIONE:
Via Cristoforo Colombo, Monticello Conte Otto VI

Descrizione sintetica: ufficio e un vano di mq 20,0 ad uso Cantina/deposito ricavati al piano terra di una porzione di casa a schiera, con accesso da un portico comune. L’ufficio si compone di un locale principale e sul retro un disbrigo con un wc e un ripostiglio, oltre al locale ad uso deposito con vetrata a scorrere sul sottoportico.


Aste Agency SRL offre il servizio di assistenza per acquistare tramite un mutuo con banche convenzionate. Assiste ed indirizza, dall’aggiudicazione fino alla consegna delle chiavi.

PERCHE’ COMPRARE ALL’ASTA:
- Acquisto sicuro tramite Tribunale;
- Prezzo inferiore rispetto al mercato libero, quindi rata del mutuo più bassa;
- Banche convenzionate con i Tribunali;
- Nessun vincolo di prezzo nella rivendita e nella locazione.

Le Aste Giudiziarie sono soluzioni abitative a prezzi unici, in quanto si compera ad un prezzo inferiore, paragonato alla realtà proibitiva del mercato libero, e l’investimento immobiliare risulta essere sicuramente conveniente.
Per maggiori delucidazioni vi invitiamo a contattarci. Sarà nostra premura fissare un appuntamento in studio e trasferirvi tutte le informazioni necessarie per un’attenta e serena valutazione.

ASTE AGENCY SRL – Contattateci per un appuntamento presso uno dei nostri uffici o in videochiamata.
Caratteristiche principali
Codice:
112.25.1.140526.VI
Città:
Monticello Conte Otto
Categoria:
Ufficio
Locali:
1
Bagni:
1
Mq:
59
Piano:
Terra
Anno:
1976
Classe energetica:
G
Stato Immobile:
Buono
Grado:
Medio
Riscaldamento:
Autonomo
Fonte Energetica:
Metano
Accesso Disabili:
No
Mappa
Via Cristoforo Colombo, - Monticello Conte Otto (VI)
Planimetrie
Richiedi informazioni
Invia
Cookie preference