Acquisto Assistito in Asta e Pre-Asta

In vendita
Villetta schiera
Sermide
95.625 €
Descrizione
Acquisto Assistito in Asta e Pre-Asta
Per maggiori proposte visita il sito dell’agenzia: www.asteagency.com

Verifica fattibilità d’acquisto in PRE-ASTA

DATA ASTA: 11/06/2026

UBICAZIONE E DESCRIZIONE:
Via E. De Nicola, 9, 46028 Sermide e Felonica Mantova


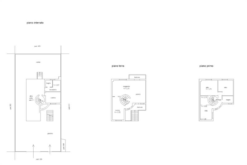
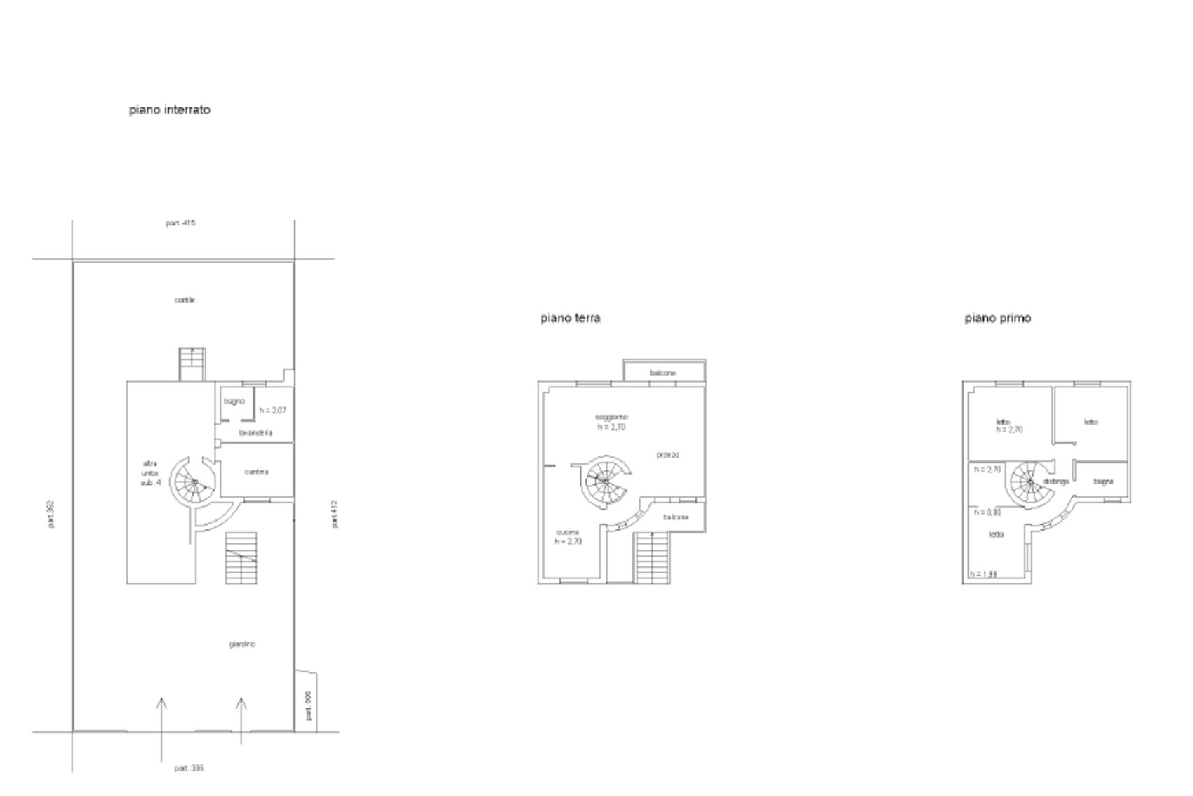
Descrizione sintetica: Villetta a schiera disposta su piano seminterrato, terra e primo collegati da scala interna a chiocciola.
Piano terra: soggiorno con accesso a balcone, cucina separata con ulteriore balcone. Balconi 13 mq.
Piano primo: zona notte composta da tre camere da letto, disimpegno e bagno.
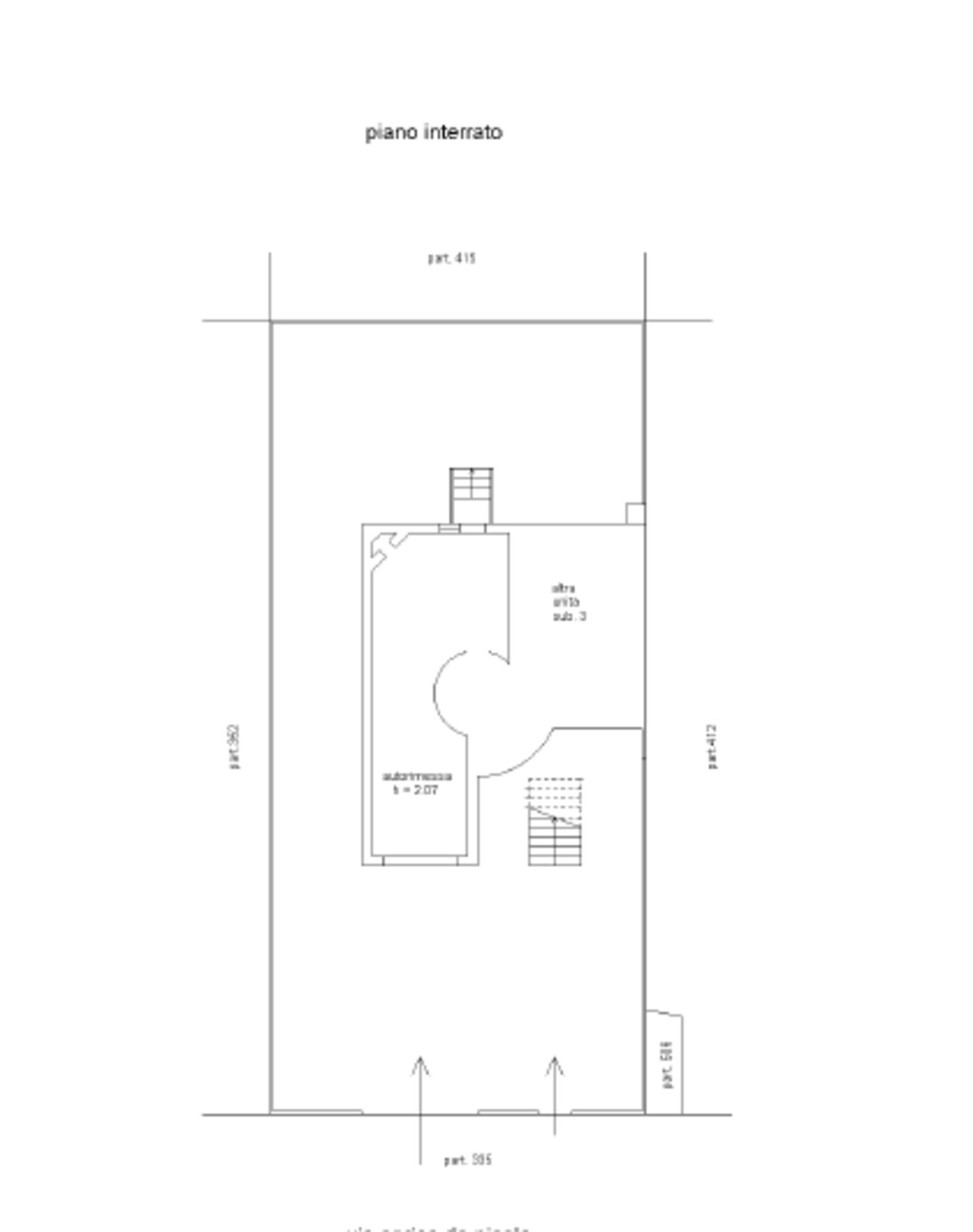
Piano seminterrato: autorimessa di 36 mq, cantina e bagno di 30 mq

Aste Agency SRL offre il servizio di assistenza per acquistare tramite un mutuo con banche convenzionate. Assiste ed indirizza, dall’aggiudicazione fino alla consegna delle chiavi.

PERCHE’ COMPRARE ALL’ASTA:
- Acquisto sicuro tramite Tribunale;
- Prezzo inferiore rispetto al mercato libero, quindi rata del mutuo più bassa;
- Banche convenzionate con i Tribunali;
- Nessun vincolo di prezzo nella rivendita e nella locazione.

Le Aste Giudiziarie sono soluzioni abitative a prezzi unici, in quanto si compera ad un prezzo inferiore, paragonato alla realtà proibitiva del mercato libero, e l’investimento immobiliare risulta essere sicuramente conveniente.
Per maggiori delucidazioni vi invitiamo a contattarci. Sarà nostra premura fissare un appuntamento in studio e trasferirvi tutte le informazioni necessarie per un’attenta e serena valutazione.

ASTE AGENCY SRL – Contattateci per un appuntamento presso uno dei nostri uffici o in videochiamata.
Caratteristiche principali
Codice:
108.24.110626.MN
Città:
Sermide
Categoria:
Villetta schiera
Locali:
5
Camere:
3
Bagni:
2
Mq:
191
Box:
1
Balconi:
2
Piano:
Terra
Anno:
1980
Classe energetica:
G
Stato Immobile:
Buono
Grado:
Medio
Tipo Cucina:
Abitabile
Riscaldamento:
Autonomo
Tipo Impianto:
Radiatori
Fonte Energetica:
Metano
Accesso Disabili:
No
Accessori
Aria Condizionata
Mappa
Via E. De Nicola, 9 - Sermide (MN)
Richiedi informazioni
Invia
Cookie preference